نقشه برداری نما و نقش مهندسین نقشه برداری
نقشه برداری نما و اجرای یک نمای هندسی دقیق باعث خلق یک نمای مدرن می شود. نمای یک ساختمان بیاد ماندنی ترین قسمت یک سازه و اولین المان ارتباط یک فرد با ساختمان، است. طراحی نما ساختمان همچنین نحوه اجرای آن تاثیر بسزایی را در تلقی و برداشت افراد از آن ساختمان دارد.
به عنوان مثال یک شخص قصد خرید یک ساختمان، ویلا یا سرمایه گذاری در خرید یک واحد تجاری در یک مرکز خرید یا اداری را دارد اولین المان حائز اهمیت برای همه افراد نمای ساختمان است.

نمای زیبا طراحی شده بر مبنای فاکتور های معماری و هندسی نمایی می باشد که مورد توجه همه افراد قرار می گیرد. در طراحی و اجرای نما های مختلف از نقشه مهندس نقشه برداری نمی توان چشم پوشی کرد.
به صورت کلی مهندس نقشه بردار از ابتدای امر که تحویل زمین می باشد می بایست گوشه های پروژه را طبق سند روی زمین پیاده کند که جز امور ثبتی در مهندسی نقشه برداری می باشد. در مرحله بعد که گودبرداری می باشد جهت محاسبه احجام و محاسبه گود برداری، مونیتورینگ گود و … نقش مهندس نقشه برداری بسیار ویژه است.

در مراحل بعد که ریختن بتن مگر، چاک لاین قالب های فونداسیون، اجرای فونداسیون،فیکس بولت،شاقولی ستون و … تا نقشه برداری نما در کلیه مراحل حضور مهندس نقشه برداری الزامی می باشد.
اهمیت نمای ساختمان و نقشه برداری نما

قبل شرح امور نقشه برداری در نما در ادامه مقاله قصد داریم توضیحات کوتاهی راجع به نما ، انواع نمای ساختمان و نقش نما در ساختمان داشته باشیم.
نمای ساختمان یکی از مهمترین و اصلی ترین المان های ظاهری ساختمان است که مشخص کننده چهارچوب کار برای طراحی و اجرای دیگر المان های ساخت و اجرا می باشد. نمای یک ساختمان در زیباسازی و ظاهر شهر اهمیت زیادی دارد، این زیبایی باید با یک هماهنگی و هارمونی بالا در عناصری مانند پنجره ها، بازشو ها، مصالح و متریال مورد استفاده، ترکیب ها و المان های سازه ای، المان های دکوراتیو … در کنار یکدیگر به صورت اصولی و مهندسی قرار گیرند تا خروجی کار را به بهترین شکل تضمین کنند.
نما جزعی مهم و اصلی از کالبد سازه است. نما، اولین جز در ارتباط با مخاطب است که باید از تمامی جهات زیبایی شناختی مورد بررسی قرار گیرد. بدین منظور باید یک سری الزامات را جهت بهبود نتیجه نهایی رعایت کند.
هماهنگی اجزا ساختمان با یکدیگر از مهمترین مشخصه های استاندارد در طراحی و اجرا نما می باشد. بدین منظور می بایست بدنه ساختمان با ساختار سازه ای ساختمان اتصالات یکپارچه داشته باشد. کلیت نما می بایست اتصالات محکم و مقاومی را با سازه اصلی داشته باشد.
فرایند طراحی نما، یک حرکت تکرار شونده از پلان به طراحی نما است. طراحی نما و هم چنین اجرای آن باید با پلان و نقشه ترسیم و تایید شده از ساختمان هماهنگی و همخوانی داشته باشد. این فرایند از زمان شروع تا زمان بهره برداری باید اعمال گردد.
ما در محیط شهری با یک ساختمان و نمای آن مواجه نمی باشیم، بلکه با بناها و نماهای آنها مواجهیم یعنی ساختمان قسمتی می باشد از یک کل به اسم فضای شهری. اگر ساختمان زیبا باشد به کل شهر تاثیر می نهد و اگر ساختمان زشت باشد اثرش در همه شهر پدیدار می گردد. ساختمان در حال حاضر یک موجود تنها و دورمانده از شهر نمی باشد که همه توجه طراح و مالک به آن جلب شود بلکه بایست با حفظ شخصیت و اعتبار خود مولفه ای از یک اجتماع وحدت یافته باشد.

در دوره باروک با اینکه رسم خودنمایی و اغوای ناظر متداول شده بود ولی در آن زمان نمای ساختمان خود را تابع فضای عمومی و بالاتر میدانست و به نفع کلیت از عرض اندام فردی خود داری میکرد. به همین خاطر نه فقط شاهد وحدتی در فضای شهری آن زمان هستیم، بلکه به نظر میرسد که کلیه نماها در یک نمای واحد ذوب شدهاند.
اغتشاش در نماهای ساختمان ها از انقلاب صنعتی و بیشتر از اواسط قرن نوزدهم شروع گردید. تنوع زیاد در مصالح و همزمانی سبکهای مختلف جدید در کنار ساخت و سازهای عرف، باعث گردید تا عناصر نا همگونی در فضاهای شهری ایجاد شود. انقلاب صنعتی و رشد سرمایه داری در اروپا فئودالیسم را از میان برد ولی نه از برادری خبری شد و نه از برابری.
تغییر در ساختار فکری، پیامدهای خود را به دنبال داشت و تصور از یک ساختمان را به وجود آورد. در شهر سازی نوگرا، برداشت از خیابان، به عنوان فضایی محصور از بین رفت و ساختمانها به احجامی منفرد و منزوی تبدیل شدند که در فضایی ادامه دار و بی منتها چیده میشدند. ساختمانها حداقل دارای چهار نما شده بودند و صحبت کردن از دو نمای اصلی و فرعی پوچ گردید.
انواع نما در ساخت و ساز شهری

نمای ساختمان شیشه ای ( کرتین وال)
ظرافت دید فریم نگهدارنده شیشه از بیرون، امکان استفاده از بازشو پنهان در نما، تعبیه راحت شیشه و راحتی در عوض کردن شیشه، نبود انتقال تنش های سازه عمده ساختمان بر شیشه، فعالیت مستقل هر کدام از فریم ها در مقابل زلزله، امکان بهره گیری از رنگ های گوناگون در نمای ساختمان، نبود محدودیت رنگ فریم، امکان پیدید آوردن سطح های عایق صوتی و حرارتی ، داشتن واشرهای پنهان برای آب بندی، امکان عملیاتی کردن نمای آلومینیومی، پدید آوردن مرز تفکیکی بین سازه نما و سازه اصلی، در و پنجره آلومینیوم، از جمله برتی ها و مزیت های استفاده از نمای شیشه ای یا کرتین وال می باشد.
نمای ساختمان کامپوزیت
نمای کامپوزیت یکی از تازه ترین نماهای موجود در صنعت ساختمان است که به خاطر زیبایی و برتری های انحصاری اش طرفداران بسیاری را به خود چذب نموده است. تعرفه تعبیه نمای کامپوزیت در مقایسه با دیگر نماها ارزان تر بوده و مراحل نصب آنها نیز بالاست علت آن پیش ساخته بودن ورق ها و نصب و اجرای سریع آنها در محل است.
نمای ساختمان ترموود
ترموود تازه ترین شیوه استحکام بخشی چوب به منظور مصرف در محیط های سرباز، نظیر نماهای چوبی ساختمانها است. این شیوه خلوص طبیعی چوب را حفظ می کند و نمی گذارد اندازه های آن در برابر عوامل طبیعی کم و زیاد شود و به قدری سبک است که استفاده از آن در همه جا ممکن می باشد و همچنین به استحکام و ماندگاری طولانی مدت چوب در انواع شرایط جوی کمک می کند.
نمای ساختمان سرامیکی
نمای سرامیکی اگر به صورت کنترل شده ای طراحی و ساخته شوند می توانند زیبایی ویژه و چشمگیری به نماها بدهنداما از عیب های این نماها می توان به عایق نبودن آن به برابر سرما و گرما و صدا اشاره نمود. همینطور نماهای سرامیکی به خاطر انعکاس شدید نور در اماکن شلوغ استفاده نمی شوند و کاربردی نیستند. اما از برتری ها و مزیت های آن می توان به عایق رطوبتی آن در ناحیه های مرطوب نظیر شمال و جنوب کشور اشاره نمود. که جلوی رسیدن رطوبت به درون ساختمان را می گیرند. البته این برتری به نحوه چگونگی اجرا و نصب نمای سرامیکی در نمای مدرن وابسته است.
نمای ساختمان دوکی
لوور آلومینیومی در بناهای مسکونی، اداره ها، مدرسه ها، مراکز ورزشی و در هر بنایی که در آن زیبایی و بوجود آوردن محیطی راحت با نور و دمای متعادل مدنظر است مورد کاربرد دارد. این لوورها توانایی دادن آنادایز جهت رنگ های، نقره ای، طلایی، برنز و سیاه را دارند و اگر از رنگ لاکی یا همان پودری استفاده شود می توانند در هر رنگ استاندارد واقعی رنگ، ساخته شوند.
نمای ساختمان اچ پی ال
نمای اچ پی ال را با بهره گیری از پیچ و یا پرچ میتوان نصب نمود. میتوان با استفاده از رنگ پیچ یا پرچها را مخفی کرد. اما در این صورت نبایست از پیچهایی که گل آن مخروطی شکل است استفاده کرد. با پروفیلهای آویز هنگ مانند نیز میتوان برای نصب استفاده کرد. در این شیوه اتصالاتی بر روی رویه چوب مشاهده نمیگردد.
نمای ساختمان مدرن
در نمای مدرن پنل های ساندویچی غالبا در اندازه های ۱۸ میلی متر در ضخامت و ۳۵ سانتی متر در عرض و با طول های گوناگون ساخته می شوند. البته پنل های ساندویچی تنها منحصر در طرح های فلزی نمی باشند و شامل طرح های آجری و چوبی نیز می گردند. که غالبا برای محیط های دکوراتیو مفید می باشند.
در این مقاله موضوع نقشه برداری و اجرای نما کرتین وال مورد نظر ماست، توجه داشته باشید کلیت امور نقشه برداری در نما های مختلف یکسان است. صرفا نحوه اجرای نما ها با یکدیگر متفاوت است.
نمای کرتین وال (Curtain wall)
نمای لامل یا کرتین وال، یکی از سیستم های نمای مدرن ساختمانی بوده که ساختاری خود ایستا داشته، به این معنا که وزن بالای شیشه ، بر روی سازه کرتین وال یا همان لامل ها و شاسی کشی های مربوطه سنگینی می کند و هیچ بار مرده ای حاصل از وزن شیشه ها و بار انرژی های حاصل از باد ، طوفان و … که متوجه پوسته خارجی (نما) می باشد، متوجه خود ساختمان نخواهد بود. به اصطلاح سیستم نمای لامل یک سازه مجزا محسوب می شود.

نمای کرتین وال curtainwall یکی از انواع نماهای شیشه ای ساختمان با سیستم پوشش با سازه خود ایستا است . در واقع نمای کرتین وال بهترین نمای شیشه ای ساختمان به لحاظ مسائل سازه در ارتفاع محسوب می شود. این نوع نما معمولا از مصالح سبک بویژه ترکیب آلومینیوم و شیشه ساخته می شود.
لامل چیست ؟
استراکچر آلومینیومی نمای کرتین وال، یا در واقع همان پروفیل های آلومینیومی که شیشه بر روی آنها سوار می شوند؛ لامل نامیده می شوند.در نمای کرتین وال، لامل ها در دو بخش افقی و عمودی ارائه می شوند. لامل های افقی (ترنسم) و لامل های عمودی (مولیون) نام دارند.

در اجرای سیستم های نمای کرتین وال ، به طور معمول ترنسم (لامل افقی) در سایز طولی کوچکتری نسبت به مولیون (لامل عمودی) ارائه می شود اما می بایستی که عرض لامل ها با یکدیگر برابر باشند. وجود این اختلاف سایز در طول لامل ها به این خاطر بوده که بیشتر بار شیشه بر روی لامل های عمودی (مولیون) خواهد بود.
انواع لامل :
لامل از لحاظ جنس متریال به دسته های ذیل طبقه بندی می شوند :
- لامل آلومینیومی
- لامل فولادی
- لامل چوبی
مهمترین مزیت های نمای کرتین وال را به شرح زیر می توان شناخت:
- سبکی ساختار و کاهش بارمرده ساختمان
- افزایش مقدار نور ورودی به ساختمان
- کاهش مصرف انرژی
- سرعت بالای اجرا
- عایق بندی کامل رطوبتی و حرارتی و صوتی
- امکان ترکیب آسان با سایر سیستم های پوشش نما
- امکان اجرا به صورت پیش یاخته و یا نیمه پیش ساخته
- تنوع ویژگی های و آپشن های ظاهری سیستم
- زیبایی و بخشیدن جلوه های خاص مدرن در شب و روز
- امکان نصب انواع مدل های بازشو بر روی آن
- کاهش هزینه های بهره برداری و نگهداری ساختمان
تشریح نمای کرتین وال
در واقع نمای کرتن وال از دسته نماهای خشک، نماهای تهویه شونده محسوب می شود که زیبایی خاصی نسبت به نسل قبل از آن نمای فریم لس روی آهن دارد (سیستم فریم لس روی آهن سیستم قدیمی که مشکلات آب بندی و هوابندی متعددی داشت)

انواع سیستم های نمای کرتین وال
ایجاد خطوط کلی معمارانه و طراحی فاز 2 در نماهای کرتین وال شیشه ای وابسته به دو عامل اصلی می باشد:
-در نظر داشتن استحکام سازه ای نما
-خطوط نمایان پیش بینی شده توسط آرشیتکت پروژه
اجرای این خطوط کلی معماران در نمای کرتین وال یا لامل آلومینیومی curtain wall به دو روش کلی با درپوش نگهدارنده ( FACECAP ) و بدون درپوش (FRAMELESS) اجرا می شود.


انتخاب سیستم های اجرای نمای کرتین وال به دو عامل استحکام و خطوط نمایان نما وابسته می باشد که در نماهای فریملس (بدون خطوط نمایان ) با استفاده از دو سیستم u-channel و فریم دار انجام می گیرد.
در مدل فریم لس ، هر یک از دهانه های شیشه دارای فریمی است که از پشت شیشه را قاب کرده و روی لامل توسط لقمه های آلومینیومی ویژه نگه داشته می شوند و از خارج ساختمان تنها درز مابین شیشه ها قابل رویت خواهد بود . ویژگی اصلی نمای فریم لس این است که در آن سطح شیشه به صورت پیوسته دیده می شود.
الف – سیستم کرتن وال فریم لس
ب- سیستم فریم دار
سیستم درپوش دار فیس کپ
در سیستم نمای کرتن وال – لامل درپوش دار ، شیشه مستقیما بر روی استراکچر لامل قرار می گیرد و درپوش های نگهدارنده از بیرون شیشه را روی لامل فیکس می کند . لاستیک های EPDM استفاده شده در این سیستم شیشه ها را در محل های اتصال کاملا هوابندی و آب بندی می نماید. امکان نصب درپوش های متنوعی با عرض 5 سانتی متر و با طول و فرم های متنوع بر روی دماغه های لامل وجود دارد.
در بسیاری از پروژه های مطرح ساختمانی کشور اگر به شکل صحیح و طبق استانداردهای معرفی این نوع نما به لحاظ مسائل هزینه ای و دیتیل های اجرایی صورت گیرد می تواند تاثیر زیادی در دستیابی به بهترین نوع نمای شیشه ای کرتین وال در آن پروژه منجر شود.
امروزه نمای کرتین وال در سطح بین المللی جایگاه خاصی پیدا کرده است. یکی از دلایل توجه معماران بزرگ به نمای شیشه ای قابلیت ترکیب پذیری آن با سایر مصالح نمای مدرن بوده. مصالحی از قبیل سرامیک خشک، آلومینیوم کامپوزیت و حتی سنگ های قیمتی. به شکلی که خلق نماهای خیره کننده با این متریال بین معماران به یک رقابت تبدیل شده است.
نمای کرتین وال چیست؟

در یک بیان ساده نمای کرتین وال یک محصورکننده در جهت قائم ساختمان است که هیچ نوع باری را غیر از وزن خودش و فشارهای محیطی تحمل نمی کند. این نمای شیشه ای به منظور کمک به اسکلت و سازه ساختمان در تحمل بارهای وارده طراحی نشده اند و هیچ دخالتی در انتقال بارهای مرده و زنده به شالوده ساختمان ندارند.
سیستم های اجرای نمای کرتین وال در انواع بسیار متنوعی عرضه می شوند . سیستم های از قبل طراحی شده (off-the-peg) اغلب به عنوان سیستم های اختصاصی هر شرکت که با جزئیات استاندارد و صنعتی تولید می شوند مطرح می باشند. سیستم های سفارشی (bespoke) کرتین وال معمولا برای طرحی خاص و یا یک طرح هدف دار برای هر پروژه به صورت ویژه طراحی و تولید می شوند.
امروزه سیستم های اجرای نمای شیشه ای به سه نوع متفاوت با ویژگی های ساختاری و فرمی تولید و اجرا می شوند. اولی به صورت یک فریم است مربوط به ساپورت اجزای اسمبل شدنی (سرهم شونده) که در محل کارگاه ساختمانی سرهم می شوند، البته تولید این اجزا قبل از ورود به کارگاه به شکلی صورت می گیرد که در محل کارگاه فقط آماده برای اسمبل و نصب باشند. اغلب این سیستم را با نام سیستم
دومین سیستم پروفیل ها و مقاطعی مربوط به دیوارهای پیش ساخته است که به صورت فریم های اصطلاحا یونیتایز به محل پروژه انتقال می یابند و نهایتا سیستم سوم فریم هاییونیتایز از پیش ساخته شده است که شیشه نیز در آن ها به صورت کارخانه ای نصب شده باشد و به صورت کاملا آماده در محل کارگاه ساختمانی فقط بر روی یک فریم سازه ای انتقال دهنده بار نصب می شوند .
انتخاب بین سیستم اجرای نمای کرتین وال استیک و یونیتایز به تعداد زیادی فاکتور بستگی دارد:
- هزینه تمام شده
- نوع دسترسی به کارگاه
- برنامه زمان بندی پروژه طراحی کلی
- معماری
- ضرورت های سازه ای
نمای کرتین وال شیشه ای یکی از پرکاربردترین انواع نماهای شیشه ای می باشد. نمای کرتین وال در برگردان پارسی معنای “دیوار پرده ای” را به خود می گیرد ، اگر بخواهیم از منظر لغت شناسی به آن نگاه کنیم متوجه می شویم که از دو جزء “دیوار” (که به منظور نوعی پوشش و جداکننده به کار برده شده) و “پرده” (که هم بر سبکی وزن دلالت دارد و هم شفافیت) ، تشکیل شده است.
در واقع نمای کرتین وال شیشه ای سیستم پوشش دهنده بیرونی ساختمان است ، پوششی غیر ساختاری که خودش به صورت جداگانه یک “سازه” محسوب می شود ، به این معنا که هیچ بار مرده ای از ساختمان را به دوش نمی کشد و تنها نیرویی که بر آن وارد می شود وزن خودش و نیروی بادی است که با احتساب موقعیت اقلیمی و ارتفاع ساختمان بر آن وارد خواهد شد.
از مزایای نمای کرتین وال شیشه ای :
- کاهش مصرف انرژی
- سبکی ساختاری و کاهش وزن مرده ساختمان
- نهایت استفاده از شفافیت نور روز
- سرعت بالای اجرا
- امکان ترکیب آسان با سایر پوشش های نما
- امکان نصب Opening یا مدل های بازشو
- کاهش هزینه نگه داری و مراقبت
- توانایی مقاومت در برابر لرزش های حاصل از باد های شدید و یا زمین لرزه
سازه های زیرمجموعه نمای کرتین وال شیشه ای انواع متفاوتی دارند:
- نمای کرتین وال شیشه ای درپوش دار (Cover Cap)
- نمای کرتین وال شیشه ای بدون قاب (Frameless)
- نمای کرتین وال شیشه ای نیمه قاب دار (Semi Frame)
سیستم درپوش دار (Cover Cap) :

در این روش زیر سازی توسط پروفیل های عمودی و افقی موسوم به “Transoms” و “Mullions” که با یکدیگر یک شبکه را تشکیل می دهند انجام می شود. شیشه ها مستقیماً بر روی استراکچر لامل قرار گرفته و یک درپوش فشاری”Pressure Plate” آن را از بیرون بر روی لامل آلومینیومی محکم می کند و به جهت زیبایی کار Face Cap هایی با عرض مشخص اما طرح و طول دلخواه بر روی آن قرار میگیرد. برای مقاومت این سازه در برابر شرایط آب و هوایی متفاوت از لاستیک های EPDM برای آب بندی حرفه ای محصول استفاده می شود.
سامانه نیمه درپوش دار (Semi Frame) :

در این روش یکی از قسمت های افقی یا عمودی (به دلخواه) حذف خواهد شد و از لاستیک های عایق و چسب های مخصوص پایه سیلیکونی استفاده می شود.
سامانه بدون فرم (Frameless) :

در روش نمای کرتین وال شیشه ای فریم لس اگر به سطح شیشه بنگریم شاهد یک سطح یکدست خواهیم بود اما فریم های شیشه به شکل سایه از زیر شیشه مشخص خواهد بود. از مزایای این شیشه می توان سهولت در نگه داری و نظافت و همچنین سرعت نصب بالا (به علت آزادی استفاده از سیستم یونیتایز اشاره کرد.
کرتین وال های فریم لس دو روش متفاوت برای نصب دارند:
- روش U-Channel
- روش Full Frameless Step-Unite
U-Channel
در این روش Spacerهای شیشه به شکل U در آمده تا مانند پازل روی وادار های آلومینیومی که روی لامل قرار دارند توسط لقمه های مخصوص فلزی glass holder فیکس شوند ، همچنین فواصل خالی بین شیشه ها توسط چسب های مخصوص سیلیکونی پوشانده خواهد شد. این سامانه به دلیل نداشتن کاسِت از روش دیگر یعنی Step-Unite مقرون به صرفه تر است.
Full Frameless Step-Unite
در این سیستم شیشه درون کاسِت ها فیکس می شود و کاست ها با پیچ یا پرچ به ترنسم و مولیون فیکس شده و به جهت عایق شدن در آنها از لاستیک های EPDM و چسب های مخصوص سیلیکونی استفاده می شود. اکنون شیشه ها اسمبل شده اند و برای نصب بر روی سازه اصلی ساختمان آماده می باشند.
تسلط مهندس نقشه برداری به امور اجرایی کارگاه

قبل از تشریح امور نقشه برداری در اجرای نما بیان یک نکته بسیار ضروری است. در پروژه های اجرایی مختلف مشاهده می شود که مهندسین نقشه برداری علاقه ای به امور اجرایی و عمرانی پروژه ندارند. در واقع بیان می کنند که امور عمرانی و ارجای مربوط به مهندسین اجرایی و عمران است و ارتباطی به مهندس نقشه برداری ندارد.
به این دست همکاران توصیه میکنیم که این طرز فکر بسیار غلط است. در پروژه های عمرانی یا پروژه نقشه برداری نما که موضوع مقاله ماست باید عرض کنم در صورتی که به امور اجرایی اشراف یا آشنایی نداشته باشید بهتر است در نقشه برداری نما مشارکت نداشته باشید. نقشه برداری نما به دلیل دقت بالا در اجرا می تواند در دسته نقشه برداری صنعتی قرار بگیرد.
در صورت اشراف به امور اجرایی نقشه برداری نما از زیرسازی گرفته تا نصب می بایست در جریان کامل اجرا باشید و در این صورت میتوانید شکل هندسی پروژه را همچون نقشه اجرا کنید. در صورت تسلط کافی به امور اجرایی مهندس نقشه بردار می تواند ارتباط کاری و اجرایی بهتری با اکیب نصاب داشته باشد.
به عنوان نمونه هر مجری روش خاصی در اجرای زیرسازی نما را دارد که مهندس نقشه بردار می تواند طبق روش اجرایی مجری خطوط تراز و مختصاتی را به مجری ارائه بدهد جهت پیشبرد سریعتر و دقیق تر پروژه.
اکیپ نصاب و مهندس نقشه برداری در صورت همفکری می توانند پروژه را به شکل هندسی بهتری اجرا کنند و از روش های اجرایی یکدیگر بهره گرفته و پروژه نصب را در زمان کوتاه تر و با شکل دقیق نقشه اجرا کنند. یک نکته دیگر که حائز اهمیت است تسلط کافی مهندس نقشه بردار به نقشه خوانی صنعتی است. این موضع هم به شکل قابل توجهی به قدرت تسلط مهندس نقشه برداری به امور اجرایی می افزاید.
شرح وظایف مهندس نقشه بردار در نقشه برداری نما:

۱- نقشه برداری و تهیه نقشه های چون ساخت (ازبیلت)
مهندس نقشه برداری پس از بازدید از پروژه اقدام به نقشه برداری نما سه بعدی با استفاده از دوربین توتال استیشن می نمایید. این عمل موجب برداشت کلیه عوارض ساختمان ، تیر و ستون ها ، برداشت فریم پنجره ها و … می شود که در طراحی شاپ دراووینگ بسیار حائز اهمیت می باشد (خدمات مهندسی اجرای نمای خشک).
۲- تهیه دفترچه محاسبات مهندسی
پس از نقشه برداری نما و مشخص شدن فواصل تیر و ستونها و با توجه به موقعیت و مکان پروژه این شرکت نسبت تهیه دفترچه محاسبات اقدام میکند تا کلیه سایز مقاطع و پروفیلها و جزئیات اتصال و نحوه عملکرد آن مشخص شود.
۳-طراحی نقشه های شاپ دراووینگ
منظور ازطراحی شاپ دراوینگ یا نقشه های کارگاهی ، نقشه هایی است که این شرکت جهت پلاک بندی پنل های استفاده شده و همچنین طراحی جزئیات اجرا ،استفاده می کند.این نقشه ها را از روی نقشه های فاز ۲ نما تهیه می کنند.به عبارتی بعد از آن که مهندسین معمار وسازه کارخود را به اتمام رساندند نوبت به فاز جدیدی می رسد که در آن نقشه های کارگاهی تهیه می شوند.
۴-برآورد و تهیه متریال مصرفی
با توجه های نقشه های شاپ دراووینگ تهیه شده اقدام به برآورد کلیه متریال مصرفی و ارائه لیستوفر می نمایید.
۵-نظارت کامل بر عملیات موضوع پیمان
پس از تهیه نقشه های شاپ دراووینگ و تایید آن توسط کارفرما عملیات نظارت بر اجرا آغاز می شود.
طبیعتا برداشت دقیق ازبیلت سازه در جهات مختلف و تشکیل مدل سه بعدی نما در نرم افزارهای نقشه کشی جهت بهره برداری طراح قدم اول هست و آشنایی مهندس نقشه بردار با نحوه اجرای استراکچر و المانهای نصب نما، نظیر دستک ها و لامل ها و ریلها.
نقشه برداری و برداشت نمای ساختمان
در هنگام نصب انواع نما پیاده سازی خطوط افقی و عمودی و خط ارتفاعی مورد نیاز عوامل اجرایی جهت رعایت هندسه درست نما اصلی ترین وظیفه نقشه بردار هست در این عملیات دقت زاویه ای و برد لیزر دوربین و همچنین استحکام شبکه مختصات استفاده شده بسیار حائز اهمیت هست…
همچنین انطباق محور دیدگانی توتال با نور مرئی و تارهای رتیکول( هممحوری) بسیار مهم است باید قدرت تجزیه و تحلیل اطلاعات سه بعدی و استخراج اطلاعات از ایننقشه ها و تبدیل آنها به المانهای هندسی مورد نیاز اکیپ اجرا و نصب و کنترل آنها را داشته باشد..
نقشه برداری نما (برداشت) به صورت دو بعدی

ابتدا بهتر است یک برداشت از تمامی طبقات به صورت مجزا انجام پذیرد بدین صورت که وقتی به نمای ساختمان نگاه می کنیم هر طبقه را مجزا برداشت کنیم نقاط برداشتی تفاوتی نمی کند در چه ارتفاعی از طبقه باشد.
از یک سمت شروع کنید و در سمت دیگر به پایان برسانید آنگاه نقاط را وارد صفحه ترسیم کرده و با پلی لان به هم وصل نمایید در ضمن برای هر طبقه لایه و رنگ مخصوصی بگذارید، آنگاه متوجه خواهید شد که کدام قسمت از نما بیرون زدگی و یا تورفتگی بیشتری دارد.
حال با مشورت اجرای نماکار بیشترین بیرون زدگی را در نظر می گیرید و یک پاره خط در مقابل آن ترسیم می کنید و ابتدا و انتهای این پارخط را یادداشت کرده و با برنامه رفرنس لاین تمام نمای ساختمان را کنترل می کنید.
البته آن رفرنس خط نمای شاغولی ساختمان میشود. فقط دقت کنید برداشت با یک مختصات مشخص و نقاط برداشت شده با فاصله کم نسبت به هم باشند، برای نشانه گذاری روی نما ساختمان و یا دیوار می توانید از برچسب رتروتیپ استفاده نمایید.

در این روش نیازی به سه بعدی نیست، دو بعدی ترسیم کنید هر طبقه ای با یک لایه مشخص و رنگ خاص بعد که زوم کنید بیرونی ترین جا ها در تمام طبقات مشخص میشود. سپس یک خط از بیرونی ترین نقاط در تمام طبقات بهم وصل کنیند این میشود خط نما ضخامت سنگ و دوغاب را حساب کنید به همان اندازه فاصله بدهید و ابتدا و انتها را یک رفرنس ببندید هر جا افست صفر بود رو خط نمای تعریف شده هستید. برداشت های رایج نقشه برداری و ترسیمات اکثراً در بعد مسطحاتی (X,Y) انجام می گیرد . مشکل برداشت و یا پیاده سازی در نما یا کلا در ارتفاع، به دلیل تغییر صفحه اقفی با قائم می باشد.
فرض کنید یک نما روبروی از ساختمان با یک پنجره باشد. نقاط برداشت شده دارای مختصات X, Y یکسان و ارتفاع متفاوت می باشند که این باعث می شود در نرم افزار این نقاط دو به دو بر روی هم بیافتند ( یا با فاصله خیلی کم از یکدیگر در حد میلیمتر) . که این باعث می شود که یک نقشه شلوغ از نقاط بوجود آید. پس سوال این است که چگونه می توانیم یک نمایش مناسب از نما را ارائه دهیم ؟
روش برداشت در نما در ارتفاع

جهت ترسیم در این بعد نیاز است که یک سیستم مختصات جدید تعریف گردد. که محور y این سیستم مختصات بر اساس ارتفاع و یا اختلاف ارتفاع نقاط می باشد و محور X نشان دهنده فاصله نسبت به یک مسیر مشخص، می باشد. همین روال برای برداشت و نمایش مقاطع مختلف تونل نیز مورد استفاده قرار می گیرد.
جهت روشن شدن موضوع در ساختمان وموضوع نما سیستم مختصات جدید به شرح ذیل تعریف می گردد:
محور x : مرز بسته و بیرونی طبقه همکف یک ساختمان به عنوان مسیر تعریف می گردد.
محور Y: این محور عمود بر محور x می باشد
در نتیجه بعد از مراحل بالا، برای هر نقطه برداشتی ، یک مختصات جدید بدست می آید که در فایل جدید وارد نرم افزار نقشه برداری می گردد. این روش به صورت تجربی بدست آمده است و قطعا روش های دیگر نیز وجود خواهند داشت. در برداشت نما توسط توتال استیشن از دوربین نقشه برداری با دقت زاویه ای مناسب استفاده کنید با برد لیزر مناسب بهتر است از یک شبکه مختصاتی جهت برداشت استفاده کنید که از چرخش جلوگیری شود.
ابتدا شبکه نقشه برداری را ایجاد کنید سپس عملیات را شروع کنید.از توجیه دوربین با زوایا و طولهای نامناسب دارای طول های کوتاه و بلند و زوایای حاده و منفجره خودداری کنید.
استفاده از چپقی جهت براشت نما در ارتفاع

جهت برداشت نقاط در ارتفاع به دلیل نیاز به چرخش لمپ توتال استیشن به سمت بالا شعاع دید نقشه بردار کاهش می یابد و نمیتواند از طریق چشمی توتال استیشن دید کافی داشته باشد جهت قرائت نقاط. در این مواقع می بایست از چشمی موسوم به چپقی استفاده کرد.
نصب چشمي و چپقي را همانند كليپ انجام دهيد كه به دستگاه و لوازم جانبي آسيب نزنيد. پس از نصب چپقي چشمي را در كاور قرار دهيد كه ضربه نخورد زيرا نياز به جابجايي و نصب مجدد هست.
دوربین لایکا با چپقی نصب شده داخل جعبه جا نمي شود پس برای جابجایی ایستگاه یا باید چپقی را در آورد یا دوربین رو با دست حمل کنید كه اشتباه است. چپقی اگه ضربه بخورد که خیلی زیاد مواقع حمل و نقل و نصب پیش مي آيد، تارهای ریتیکول رو جابجا میبینید و باعث خطای مختصاتی میشود.
با این مشکلاتي که بيان شد ميتوان بعضي مواقع روي توتال دوربین دیجیتال نصب كرد تا دیگر مجبور نباشیم مدام داخل لنز را نگاه کنیم و بابت زوایای <180 گراد و <40 گراد به مشکل بخوریم. و مدام حواسمان به داخل لنز باشد. ميتوان يك دوربین دیجیتال روي چشمی توتال نصب كرد و عکس و فیلم مراحل كار تهيه كرد جهت مستندات پروژه، ناشاقولی ستون و چندين موضوع دیگر که لنز 30X توتال در اختیار ميگذارد
در هنگام برداشت از منو Q CODE توتال استیشن استفاده کنید جهت برداشت عوارض زیرا در هنگام ترسیم در نرم افزار CIVIL 3D سردر گم نخواهید شد.ابتدا عوارض مورد نیاز را تحلیل کنید کدها را وارد توتال استیشن کنید سپش آغاز عملیات برداشت.
معرفی و نحوه استفاده از Q-Code در توتال استیشن های لایکا
از این به بعد در صورتیکه که در قسمت Surveing منوی Q-Code را فعال کنیم به جای وارد کردن کد عارضه مربوطه شماره تخصیص داده به آن کد را وارد می کنیم و در نهایت هنگام تخلیه دستگاه به جای شماره اختصاص داده شده کد مربوطه دیده میشود.
نحوه ساخت Q-Code

در منوی Manage وارد قسمت Code شده و New را میزنیم در این صفحه می بایست Code , Description , Info و… را برای ساخت Q-code خود وارد کنیم بدین ترتیب که به اولین کد ساخته شده عدد 01 الی 09 اختصاص داده میشود تا کد دهم الی آخر که 10 و11و….میشود.یعنی توتال استیشت لایکا در این قسمت برای اعداد 1تا9 ،01 تا 09 در نظر میگیرد.
در سری های قدیمی لایکا تا قبل از سری های جدید Ts خود دستگاه به ترتیب وارد کردن کدها از شماره 01 الی آخر به کدها عدد اختصاص می داد ولی در سری های جدید شما خود قادر به تخصیص عدد مورد نظر نیز به کد خود به عنوان Q-code هستید.
بعد از تمام شدن کار ساخت کد ها می بایست در هنگام برداشت در قسمت Surveying ، کلید Q-Code را زده تا روی صفحه توتال پیغام زیر ظاهر شود:
از این به بعد به محض وارد کردن عدد مربوط به هر کد در قسمت کد به جای عدد ،کد مربوطه به نمایش در می آید.
مزایای استفاده از Q-Code
1 – بالا رفتن سرعت عملیات زمینی
2 – کنترل در صحیح وارد شدن کدها در هنگام برداشت
3 – بی نیاز شدن از ادیت دیتا پس از تخلیه از دوربین
در این روش پس از برداشت و تخلیه در نرم افزار مربوطه ترسیم را به شکل سه بعدی انجام دهید زیرا با برداشت عوارض به صورت خطی ترسیم آسان تری خواهید داشت. در صورتی که نیاز به برداشت داخلی طبقات را داشته باشید می بایست نقاط مشترک برداشت نمایید جهت یکپارچه سازی نقشه نما و نقشه دیوارها و عوارض داخلی.
روش اجرایی برداشت و یا پیاده سازی اجزای ساختمان در نما

برداشت های رایج نقشه برداری و ترسیمات اکثراً در بعد مسطحاتی (X,Y) انجام می گیرد. مشکل برداشت و یا پیاده سازی در نما یا کلا در ارتفاع، به دلیل تغییر صفحه اقفی با قائم می باشد. به عبارت دیگر باید گفت که : برداشت بر روی زمین در صفحه افق انجام می گیرد و در نرم افزار به صورت دو بعدی ترسیم میگیرد و ارتفاع به صورت اعداد نمایش داده می شود در حالتی که نما در بعد ارتفاع و عمود بر صفحه افق اجرا می گردد.
فرض کنید یک نما روبروی از ساختمان با یک پنجره باشد. نقاط همرنگ برداشت شده دارای مختصات X, Y یکسان و ارتفاع متفاوت می باشند که این باعث می شود در نرم افزار این نقاط دو به دو بر روی هم بیافتند ( یا با فاصله خیلی کم از یکدیگر در حد میلیمتر) . که این باعث می شود که یک نقشه شلوغ از نقاط بوجود آید.
ترسیم برداشت نما

جهت ترسیم در این بعد نیاز است که یک سیستم مختصات جدید تعریف گردد. که محور y این سیستم مختصات بر اساس ارتفاع و یا اختلاف ارتفاع نقاط می باشد و محور X نشان دهنده فاصله نسبت به یک مسیر مشخص، می باشد. همین روال برای برداشت و نمایش مقاطع مختلف تونل نیز مورد استفاده قرار می گیرد. جهت روشن شدن موضوع در ساختمان وموضوع نما سیستم مختصات جدید به شرح ذیل تعریف می گردد:
محور x : مرز بسته و بیرونی طبقه همکف یک ساختمان به عنوان مسیر تعریف می گردد. که از یک نقطه از ساختمان شروع می شود.
محور Y: این محور عمود بر محور x می باشد که در واقع از اختلاف ارتفاع هر نقطه نسبت به ارتفاع نقطه متناظر خود بر روی طبقه همکف بدست می آید. در نتیجه بعد از مراحل بالا، برای هر نقطه برداشتی ، یک مختصات جدید بدست می آید که در فایل جدید وارد نرم افزار نقشه برداری می گردد. این روش به صورت تجربی بدست آمده است و قطعا روش های دیگر نیز وجود خواهند داشت. می توانید مراحل صفر تا صد این راه حل وبرداشت و ترسیم یک ساختمان را با تهیه محصول ….. دریافت نماید.
روند اجرای یک پروژه ساختمانی در مراحل عملیاتی مختلفی خلاصه میشود که اولین آن نقشه برداری است. نقشهبرداری علمی است که در صنایع ساختمانسازی، پل، جاده و شهرسازی، زمینشناسی، مهندسی معدن و به طور کلی در هر زمینهای که اندازهگیری سازه یا عارضهای بر روی زمین باید انجام گیرد، کاربرد دارد. در دنیای امروز برای حداکثر بهرهبرداری از فضا و ساخت سازههایی پایدار از همه جوانب درک و استفاده درست از نقشهبرداری از اهمیت ویژهای برخوردار است. در این مقاله به طور مفصل به نقشهبرداری در ساختمان خواهیم پرداخت.
به طور کلی، عملیات نقشهبرداری در دو مرحله صورت میگیرد. مرحله اول که مرحله برداشت است و مرحله دوم کارشناس به ارائه نتایج میپردازد. به عبارتی، در مرحله اول مهندس نقشه بردار از وسایل و دستگاه های مانند گیرنده مولتی فرکانس، توتال استیشن و غیره استفاده و دادههایی را برای مرحله دوم جمعآوری کند. در مرحله دوم نتایج به صورت (کیفی) نقشه، مقطع طولی و مقطع عرضی یا به صورت (کمی) جدول و مدلهای رقومی زمین ارائه میشود.
در نقشه برداری اندازهگیری و برداشت مشخصات مناطق کم مساحت معمولاً کرویت زمین صفر در نظر گرفته میشود که به این روش نقشهبرداری مستوی گفته میشود. در نقشهبرداری ساختمان هم مشخصات مساحت کمی از زمین برداشت میشود و در واقع نقشهبرداری مستوی انجام میگیرد. البته نقشه برداری مستوی در کارهایی مانند معماری، شهرسازی، باستانشناسی، ثبت املاک و اکتشاف نیز به کار میرود.
نقشهبرداری در دو مرحله انجام میشود. مرحله اول برداشت و مرحله دوم ارائه برداشت به صورت کمی یا کیفی به کارفرما است که در ادامه به صورت جزئی به هر دو مرحله میپردازیم.
مرحله اول نقشه برداری ساختمان (برداشت)

در این مرحله از نقشه برداری ساختمان، مهندس نقشه بردار با تجهیزات نقشه برداری به منطقه مورد نظر میرود و اقدام به نقشه برداری میکند. در این مرحله مهندس نقشهبردار به تجهیزاتی مانند ژالن، شاخص (میر)، متر، دوربین نقشهبرداری (نیو، تئودولیت و …)، تراز و کمک نقشه بردار احتیاج دارد.
در مرحله برداشت مشخصات در نقشهبرداری، مشخصاتی مانند ارتفاع از سطح دریای آزاد، زاویه، طول و عرض جغرافیای، ارتفاع دوربین و فاصله هر نقطه اندازهگیری شده و از ایستگاه نقشهبرداری، برداشت میشود. در ادامه میتوانید که روند اجرای برداشت را مرحله به مرحله مشاهده کنید:
- نقشه بردار ابتدا نقطهای را که اشراف کافی به نقاط مورد نظر برای اندازهگیری دارد را انتخاب میکند.
- سه پایه دوربین را با استفاده از ترازهای کروی قرار گرفته بر روی بدنه سه پایه تراز میکند.
- ارتفاع سه پایه را با توجه به قد خود تنظیم میکند.
- سپس دوربین را روی سه پایه نصب و به تراز کردن دوربین نیز میپردازد.
- ارتفاع دوربین را از سطح زمین به وسیله متر اندازهگیری میکند.
مرحله دوم نقشهبرداری ساختمان (ارائه نتایج)

در مرحله دوم نقشه برداری ساختمان با استفاده از مشخصات به دست آمده از مرحله برداشت، مهندس نقشهبردار به ترسیم نقشه و ارائه مقادیر به دست آمده به صورت جدول و دادههای رقومی میکند و به کارفرما ارائه میدهد.
نقشه های ساختمان معمولاً هنگامی تهیه می شوند که هنوز ساختمان ساخته نشده است و طراح با کمک نقشه آنچه را در ذهن دارد به مجری ساختمان منتقل میکند اما گاهی این روند معکوس می شود. گاهی اوقات ما نیاز به نقشه های یک بنای موجود داریم. مثلاً برای بازسازی یا الحاق قسمت تازه ای به آن. علاوه بر این بسیاری از بناهای قدیمی فاقد نقشه هستند و تهیه نقشه از آنها به ما کمک می کند تا دانش خود را نسبت به ایده های طراحی و ارزش های معماری این بناها افزایش دهیم.
از این رو ما اقدام به تهیه نقشه از بناهای ساخته شده می کنیم. به این عمل برداشت یا رولوه می گویند. ممکن است حتی نقشه های یک بنا موجود باشد اما در موقع ساخت قسمت هایی از آن تغییر کرده و مطابق نقشه اجرا نشده باشد که بسیار هم پیش می آید. در چنین مواردی اگر بخواهند مثلاً بعد از چند سال تغییراتی در بنا ایجاد کنند، تهیه نقشه های وضع موجود بنا لازم میشود. ه مچنین ممکن است در ساختمانی که در هنگام اجرا تغییراتی در نقشه آن داده شده در پایان کار و برای برآورد هزینه، برداشت مجدد از تمام یا قسمت های تغییر یافته لازم باشد به این نوع نقشه ها (چون ساخت ) یا (as built) می گویند.
کابرد نقشه های ازبیلت ( چوت ساخت)

در پروژه های ساختمانی ، از نقشه های ساخته شده ازبیلت و معنی لاتین آن as-built ازبیلت ( آموزش ازبیلت ) برای ردیابی تغییرات زیادی از طرح های اصلی ساختمان که در طول ساخت و ساز رخ می دهد ، استفاده می شود.
ترسیم نقشه های ازبیلت یا چون ساخت از وظایف پیمانکار است. این نقشه ها که چون ساخت نیز نامیده می شوند ، بخش مهمی از ساخت ، بازسازی و نگهداری جدید هستند. اگرچه برخی از آنها به عنوان نقشه اجرایی یاد می کنند ، اما اصطلاح صحیح ازبیلت است ، زیرا آنها به پروژه همانطور که در واقع ساخته شده است اشاره می کنند. قبل از شروع هر پروژه ساختمانی ، مهم است که بدانید نقشه های ساخته شده برای چه مواردی استفاده می شوند ، شامل چه اطلاعاتی هستند ، چگونه ایجاد می شوند و تفاوت بین نقشه های ساخته شده و ثبت نقشه ها. از نقشه های ساخته شده برای چه مواردی استفاده می شود؟
در هر پروژه ساختمانی ، برنامه های دقیق برای موفقیت حیاتی است. در طول یک پروژه ، ویژگی های ساختمان به احتمال زیاد تغییر می کند، زیرا پیمانکار با موانع مربوط به مصالح ، محل یا سازمان های دولتی روبرو می شود. از آنجا که نقشه های ازبیلت برای ثبت این تغییرات و ارائه نمای دقیق ساختمان در واقع ، به ویژه برای پروژه های تجاری ضروری است.
هنگام ساخت یک ساختمان جدید که قبلاً فقط نقشه آن روی کاغذ وجود داشت ، پیمانکاران با چالش های متعددی روبرو می شوند و باید در پاسخ به آنها نقشه های ساختمان خود را تنظیم کنند. این نقشه ها تغییرات را در حین ساخت و ساز به ثبت می رسانند تا هنگام اتمام ساخت نقشه ترسیم دقیق ساختمان وجود داشته باشد.
پروژه های نوسازی:
قبل از شروع پروژه بازسازی ، مهم است که درک دقیقی از ساختمان موجود داشته باشید. بنابراین ، کار با نقشه های به روز برای بازسازی ایمن و کارآمد ضروری است.
تعمیر و نگهداری ساختمان :
در طول عمر ساختمان ، تغییرات و تغییرات کوچکی ایجاد می شود. انتظار می رود تیم تعمیر و نگهداری ساختمان نقشه ها را به منظور بازتاب هرگونه تغییر در ساختمان به روز کند تا طراحی دقیق ساختمان در هر زمان وجود داشته باشد.
برداشت نقشه یک بنا چگونه انجام می شود؟
امروزه با استفاده از ابزارهای پیشرفته نقشه برداری، دوربین های مجهز عکاسی و رایانه میتوان نقشه های دقیقی از بناهای موجود تهیه کرد. پیش از اختراع دوربی نهای نقشه برداری که روز به روز هم دقیق تر و پیشرفته تر شده اند، یک روش آسان با دقت کافی در برداشت از بناهای معمولی رایج بوده است که هنوز هم مورد استفاده قرار می گیرد. به این روش برداشت، مثلث بندی می گویند.
مثلث بندی
می دانیم که یک بنا که مطابق نقشه ساخته شده است کاملاً مشابه نقشه آن است به عبارت بهتر اگر بتوانیم پلان یک بنا را یک شکل تصور کنیم. این شکل شکلی است کاملاً متشابه با نقشه آن و برای مثال صدبرابر نقشه بنا در مقیاس یک صدم است اما تشابه دو شکل یعنی چه؟ در بخش اول دیدید که دو شکل را مشابه هم گویند. آنگاه که زوایای آنها با هم مساوی و اضلاع متناظر آنها با هم متناسب باشند.
تعریف برداشت یا رولوه در معماری
با توجه به این موضوع که بناها و بافت های تاریخی نقش بسزایی در تعیین هویت یک ملت دارند . بنابراین شناخت و حفاظت این میراث ، اهمیت ویژه ای دارد . شناخت بنا در تمام ابعاد کالبدی و کاربردی را ، برداشت می نمایند . در برداشت ، یک جسم 3 بعدی را به تعدادی نقشه دوبعدی که شامل پلان ها ، نماها و مقاطع و جزئیات می باشند ، تبدیل می شود.

دلایل نیاز به برداشت یا رولوه:
1–می توان بافت ها و محل های تاریخی را شناسایی نمود تا بتوان تصمیمات لازم را بطور منطقی درباره آنها اعمال نمود .
2-بناهایی را که که در بافتهای فرسوده هستند و دارای ارزش هنری بوده را شناسایی و جهت مرمت آنها اقدام نمود .
3-بناهای تاریخی را با جزئیات در معرض آموزش به دانشجویان و استفاده اساتید قرارداد .
4-می توان به نقشه های پلان ، نما ، برش ها و پلان معکوس ، جزئیات سازه ای و تزئینات و حتی الحاقات و تغییرات در بناها پی برد.
5-می توان از آسیب ها ، تغییرات و عوارضی مانند نشست ، رطوبت ، سرسفتی و عوارض دیگر آنها آگاهی یافت .
شرح خدمات نقشه برداری در اجرای ساختمان

خدمات نقشه برداری از مهمترین بخش های طراحی و اجرای یک ساختمان می باشد. به صورت کلی می توان گفت بدون حضور مهندس نقشه برداری هیچ پروژه ای با شکل هندسی دقیق مطابق نقشه اجرا نمی شود.
در یک پروژه عمرانی از شاخه های مختلف علوم ژئوماتیک استفاده می شود از جمله نقشه برداری ثبتی، فتوگرامتری، نقشه برداری صنعتی و …
به عنوان نمونه در هنگام پیاده سازی محدوده پروژه طبق سند می بایست مهندس نقشه برداری حدود اربعه سند عرصه را روی زمین پیاده سازی کند که در شاخه نقشه برداری ثبتی می باشد. پس از آن گودبرداری و عملیات نیلینگ پروژه و اجرای فنداسیون، ستون، نما و …
به صورت کلی خدمات نقشه برداری جهت احداث یک سازه در سه مرحله انجام می شود:
1- قبل از احداث ساختمان
2- حین احداث ساختمان
3- پس از احداث ساختمان

خدمات نقشه برداری قبل از احداث ساختمان
عناوین اصلی خدمات نقشه برداری قبل از احداث ساختمان را میتوان به زیر بخشهای زیر تقسم بندی کرد:
مساحی حدود اربعه و نقشه برداری توپوگرافی و تهیه نقشه سایت پلان و ثبت موقعیت عوارض طبیعی و مصنوعی (مانند چاه ، درخت و …) که در هنگام طراحی معماری تاثیر گذار هستند، و تهیه پروفیل های خیابانهای دسترسی مجاور.
بررسی ابعاد اربعه و مساحت وضعیت موجود زمین و مطابقت آن با سند ثبتی و پیاده سازی طول وابعاد سند بر روی نقشه وضعیت موجود زمین (اربیلت) و رفع احتمالی عدم تطابق مشکلات ثبتی سند ملکی. کمک به تیم معماری جهت جانمایی بهترین مکان احداث ساختمان با توجه به ضوابط شهرسازی و معماری و محاسبات بروکف. جانمایی سایت پلان بر اساس دستور نقشه شهرداری بر روی نقشه های ازبیلت.
خدمات نقشه برداری حین احداث ساختمان
از مزایای کلی خدمات نقشه برداری ساختمانی میتوان افزایش دقت و صحت اجرای نقشه ها و در نتیجه افزایش تاثیرات واقعی محاسبات فنی سازه و معماری، محاسبات زلزله و افزایش بهره وری در زمان اجرای پروژه را برشمرد. عناوین اصلی خدمات نقشه برداری حین احداث ساختمان را میتوان به زیر بخشهای زیر تقسم بندی کرد:
- پیاده سازی نماها از نظر طراحی و یا نماهاییکه با مصالح خاص پیش اجرا میشوند (کامپوزیت ،آلومینیوم ، نمای فریم شیشه ای)
- پیاده سازی سایت پلان و جانمایی محل فونداسیون.
- کنترل مجدد جانمایی فونداسیون
- جانمایی و کنترل محل حفر چاه شمع ها
- کنترل پیوسته خطوط تراز بستر سازی و مگر ریزی و … .
- جانمایی محورهای سازه و کنترل پیوسته
- کنترل موقیعت مسطحاتی ستونها (در پروژه های اسکلت بتونی).
- کنترل شاقولی و پیچیدگی ستونها در ساختمانهای اسکلت فلزی حین ستون ریزی.
- کنترل خط تراز بتن بتن ریخته شده در سقف ها (کنترل تراز طبقات).
- پیاده سازی خطوط تراز در طبقات
- پیاده سازی اجزای ساختمانی بسته به نوع پروژه.
- پیاده سازی رمپ ها و سایر اجزای فنی محوطه سازی
- کنترل دقیق نصب قطعاتی که شاقولی بودن آنها
خدمات نقشه برداری پس از احداث ساختمان
پس از ساخت ساختمان و هنگام اجرای نمای ساختمان، تهیه نقشه سه بعدی از نمای ساختمان از اهمیت ویژه برخوردار است. در صورت تهیه نقشه نمای ساختمان می توان نقشه را در اختیار طراح قرار داد که طرح را بر مبنای نقشه سه بعدی وضع موجود طراحی کند.
پس از طراحی نقشه نما توسط مهندس معماری نقشه طراحی شده در همان سیستم مختصات تحویل مهندس نقشه برداری می شود و مهندس نقشه بردار موراد مورد نیاز مجری را طبق نقشه پیاده سازی می کند. نقشه برداری نما از مزایای زیادی برخوردار است، از مهمترین آنها بر آورد میزان دقیق متریال مورد نیاز برای نمای ساختمان است. با توجه به قیمت برخی متریال نما از جمله سنگ های ساختمانی نما در صورت نقشه برداری نما پروژه به شکل بهتر و هندسی تر اجرای می شود.
نقشه بردار در هر محله از اجرای نما کد های مورد نیاز مجری را روی نما پیاده سازی می کند با انجام این خدمات نقشه برداری مجری نما را طبق نقشه و دقیق اجرا میکند. توجه داشته باشید اهمیت نقشه برداری نما هم ردیف نقشه برداری فنداسیون و موراد دگیر اجرای در روی زمین است. تنها تفاوت نقشه برداری نما با نقشه برداری فنداسیون در بعد سوم است.
در نقشه برداری فتداسیون نقاط پیاده سازی طبق دو محور مستوی X و Y پیاده سازی می شوند ولی در نقشه برداری نما در واقع پای بعد سوم یا همان ارتفاع نیز در میان است. در نقشه برداری نما به علت ارتفاع بالای ساختمان و نیاز به دید کافی مهندس نقشه بردار نیاز به نصب چشمی دوربین نقشه برداری یا چپقی می باشد که مهندس نقشه بردار دید بهتری داشته باشد.
معمولا هنگام مرمت، احیا و بازسازی یک بنا و یا اجرای یک طرح جدید پس از ساخت بنا و یا تغییر در طراحی حین اجرای یک بنا نیاز به خدمات نقشه برداری به شدت احساس میشود. قدم اولیه درتمام این پروژه ها تهیه نقشه وضعیت موجود (ازبیلت) است. نقشه بردار موظف است داده های لازم بسته به نوع پروژه و نیاز پیمانکار را از محل پروژه استخراج کرده و در قالب نقشه های ساختمانی قابل استفاده برای مجری تهیه کند. معمولا شاخه های معماری و باستانشناسی ، تصویرگری بیشترین مصرف کنندگان این گونه خدمات نقشه برداری هستند.
آماده سازی بستر شبکه نقشه برداری و انتخاب ابزار مناسب جهت تهیه ازبیلت دقیق بستگی به موقعیت و نوع پروژه و تجربه قبلی نقشه بردار در پروژه های مشابه دارد. بنابراین به صورت موضوعی فقط به ذکر چند مورد بسنده میشود:
نقشه برداری تهیه پلان ازبیلت نمای یک ساختمان جهت اجرای نمای جدید و یا بازسازی نمای موجود، با کمک ابزارهای مناسب که بسته به پیچیدگی طرح انتخاب ابزار مناسب نظیر دوربینهای نقشه برداری، اسکنرهای لیزری و یا تجهیزات دقیق نقشه برداری (مجموعه توتال استیشن Reflectorless وReflective tape ) صورت میپذیرد.
جهت پروژه های بازسازی تهیه نقشه ازبیلت کلیه اجزای تاسیسات الکتریکی و محل خروجی و ورودی های لوله های تاسیساتی و سایر اجزای ساختمانی نظیر حفرات کانالهای آب و سرویسهای بهداشتی و … ضروری بوده و بسته به پیچیدگی و وضعیت طرح ابزارهای مناسب جهت برداشت انتخاب میگردد. مستند سازی میراث فرهنگی در راستای شناخت آثار تاریخی و ملی و تهیه طرح های حفاظت، مرمت، احیاء، ساماندهی بنا ها، محوطه ها و بافت های تاریخی – فرهنگی با کمک ابزار های دقیق مستند نگاری نظیر سیستم های فتوگرامتری برد کوتاه و اسکنر های لیزری.
نقشه برداری نمای ساختمان و نحوه برداشت نما

جهت شروع برداشت نمای ساختمان در مدل های نمای مختلف روش اجرایی نقشه برداری یکسان می باشد و از یک دستورالعمل پیروی میکند. توجه داشته باشید در امور اجرای نقشه برداری از جمله نما روش های اجرای متفاوت است. در واقع هر مهندس نقشه بردار می تواند یک سبک کاری منحصر به فرد داشته باشد و دستورالعمل ثابت نیست.
در اموری نقشه برداری اصول اجرایی یکسان است ولی روش انجام نقشه برداری متفاوت خواهد بود. به عنوان نمونه می توان به نحوه شبکه بندی، نحوه توجیه،بنچ مارک و … اشاره کرد. در نقشه برداری نما به دلیل حساسیت بالا در برداشت و پیاده سازی یکی از اصول مهم ایجاد شبکه بندی دقیق می باشد. مقصود از شبکه بندی در واقع ایجاد تعداد کافی بنچ مارک در اطراف پروژه با دید کافی نسبت به نقاط استقرار توتال استیشن جهت نقشه برداری نما.
جهت ایجاد شبکه بندی معمولا از تیپ ( منشور برچسبی ) استفاده می شود که دقت اجرایی کار را بسیار بالا می برد. در واقع می بایست منشور های برچسبی را در فواصل و زوایای مناسب تعبیه کرد. توجه داشته باشید کع می بایست از منشور های برچسبی استاندراد استفاده کرد. همچنین در هنگام نوجیه توتال استیشن توجه داشته باشید که EDM دستگاه را در وضعیت قرائت تیپ قرار دهید.

توضيحاتي راجع به منشور برچسبي:
منشور برچسبي بايد از لحاظ كيفيت و جنس به كار رفته مورد تاييد شركت هاي مطرح توليد كننده توتال استيشن باشد
همچنين داراي بهترين كيفيت سيگنال برگشتي. استفاده از منشور برچسبي متفرقه و نامرغوب موجب تاثير منفي بر EDM و خطاي برداشت تا ٣ ميليمتر خواهد شد.
منشور برچسبي ابزاري بسيار پركاربرد در تمامي پروژه ها ميباشد. استفاده از اين ابزار دقت،سرعت و كيفيت كار رو بالا خواهد برد در صورت استفاده صحيح به دليل قيمت بالا و اجناس بي كيفيت به كار رفته برخي لوازم جانبي پيشنهاد ميشود با اندكي ابتكار و تهيه شبرنگ با كيفيت از مارك معرفي شده در تصوير در ابعاد استاندارد اندازه گذاري كنيد و علامت تارگت را روي شبرنگ چاپ كنيد. حتي اسم بنچ مارك و لوگو شركت خودتان را هم ميتوانيد روي شبرنگ چاپ كرده و با عنوان منشور برچسبي استفاده كنيد
نكته:استفاده از شبرنگ مناسب و داراي سينگال بازگشت مناسب را فراموش نكنيد ، همچنين هنگام استفاده از منشور برچسبي توتال استيشن را در حالت tape قرار دهيد. برند معرفي شده داراي ويژگي ها مطلوب منشور برچسبي ميباشد و همان جنسي است كه در ايران تبديل به منشور برچسبي شده و با قيمت بالا به فروش گذاشته ميشود.
منشورهاي برچسبي موجود در بازار تجهيزات در ايران تهيه و بر روي شبرنگ ها لوگو لايكا و علامت تارگت چاپ و در ابعاد مختلف برش داده شده و به فروش گذاشته مي شوند، البته جنس چيني بي كيفيت تَر از اين نمونه هم در بازار موجود است
نمونه ايراني منشور برچسبي:

نمونه با كيفيت خارجي در سه مدل:
grz29-grz30-grz31

یکی از نکات مهم زوایه قرار گیری جهت توجیه توتال استیشن می باشد که میبایست دقیقا در راستای منشور برچسبی باشد و جهت قرائت حاده یا منفجره نباشد. همچنین در صورت قرائت مرکز تیپ به صورت دید نامناسب توجیه مناسبی حاصل نمی شود.
در ایجاد بنچ مارکها و قرائت آنها ابتدا شبکه بندی را نهایی کنید سپس شروع به برداشت نما کنید. در برخی مواقع نمای ساختمان در چند طرف بنا می باشد و مورد نیاز جهت برداشت است. در این مواقع می بایست شبکه بنچ مارکها را توسط شرکنی به دقت بالا برسانیم. زیرا با تعدد جابجایی توتال استیشن در شبکه بندی خطای طول و زاویه ایجاد می شود.

جهت نقشه برداری نما می بایست از توتال استیشن های با دقت ثانیه ای زیر 5 ثانیه استفاده کرد. دقت بسیار بالا در برداشت عوارض نما از اهمیت ویژه برخوردار است و میبایست تک تک عوارض برداشت شود. پیشنهاد میکنیم جهت نقشه برداری نما از Q CODE توتال استیشن استفاده کنید تا در هنگام ترسیم و به علت تعداد بالای نقاط سر درگم نشوید. تهیه کروکی نیز در هنگام برداشت به ترسیم نقشه سه بعدی نما کمک میکند.
در صورت ترسیم نقاط توسط نرم افزار های سه بعدی از جمله CIVIL 3D میتوان نقاط را با همان برداشت در سه بعد ترسیم کرد ولی اگر برداشت نقاط را با روش دو بعد ترسیم کنید دستورالعمل در بالا اشاره شد. توجه داشته باشید به علت نیاز به بعد سوم جهت ترسیم و یا رلووه در برداشت های معماری و حساس توجیه ارتفاعی از اهمیت بالا برخوردار است. قبل از شروع به نقشه برداری نما می بایست دوربین توتال استیشن را کالیبره نمود.
همچنین تست سلامت سه پایه دوربین نقشه برداری را نیز فراموش نکنید تا در هنگام برداشت دستگاه از تراز خارج نشود. در صورتی که طراح نیاز داشته باشد نقاط برداشتی یا شبکه برداشت نقاط با ازبیلت یو تی ام ساختمان در یک شبکه باشد پس از برداشت در شبکه لوکال می توان شبکه را به یو تی ام تغییر داد.
در برخی پروژه که امکان نسب منشور برچسبی نباشد می توان از منشور های 360 درجه استفاده کرد که دقت بسیار خوبی را در هنگام توجیه دارند. در واقع پس از نسب این منشور نیاز به چرخش در روبروی دوربین نیست و در امور نقشه برداری نما تسهیل بوجود می آورند. ایجاد ایستگاههای پایدار و قابل اعتماد یکی از رکن های مهم نقشه برداری نما می باشد. توجه داشته باشید که نقشه برداری در پروژه نما یا سایر پروژه ها نقش چشم پروژه را دارد. نقشه نهایی تحویلی به طراح جهت طراحی نما در واقع بستر طراحی است و طراح به این نقشه اعتماد کامل دارد و بیس طراحی نما است.

حال در صورت خطا در برداشت نما و ارائه نقشه دارای خطا در واقع پروژه با مشکل مواجه خواهد شد. پس حد اکثر دقت را به کار بگیرید زیرا نقشه برداری یعنی دقت،دقت و دقت.
ترازیابی در نقشه برداری نمای ساختمان:

برخی مهندسین نقشه برداری بر این باور هستند که دوربین توتال استیشن دارای دقت قابل قبول در ارتفاع نیست که این موضوع قابل بحث است و طی یک مقاله تشریح شد که با روشهای خاص می توان دقت توتال استیشن را بالا برد. مقاله روش ترازیابی بهینه توسط توتال استیشن را توسط لینک ذیل مطالعه بفرمایید.
بیشتر بخوانید: ترازیابی بهینه توسط توتال استیشن
در عدم بکار گیری روشی جهت بالا بردن دقت ارتفاعی می بایست انتقال ارتفاع را توسط دوربین ترازیاب انجام داد و از طبقه اول شروع و به بالای ساختمان برسیم از طریق روش رفت و برگشت. ترازیابی از طریق راه پله ها و انتقال ارتفاع در هر طبقه انجام میشود.
در هر طبقه می بایست یک دستک توسط نبشی جوش داده شود به صورتی که جهت قرار گیری میر ( شاخص ) محکم باشد. پس از ایجاد دستک ها به تعداد نقاط مورد نیاز بنچ مارک های ارتفاعی توسط دوربین ترازیاب ایجاد میکنیم.
توجه داشته باشید که می بایست ترازیابی از ورودی تا بام به صورت رفت و برگشت به صورت لوپ جهت انتشار نقاط مبنا ارتفاعی انجام شود تا از حصول دقت مورد نیاز مطمئن شویم. پس از ایجاد نقاط تراز و شبکه بندی توسط توتال اسیتشن و تراز یاب می توان عملیات برداشت را آغاز نمود. جهت نصب پنل ها باید دستک های توسط نبشی درست شود و به سازه متصل شود.
دقت بالا در جوشکاری نبشی ها از اهمیت برخوردار است. بعد از نسب دستک ها کمربند های روی این دستک ها قرار می گیرد و روی هر کمربند تعداد مورد نیاز انکراژ پیاده می شود که توسط مهندس نقشه برداری مشخص می شود. توجه داشته باشید تهیه مستند برداشت و پیاده سازی بسیار مهم میباشد و میبایست به نظارت ارائه شود. دستک ها با توجه به نقشه های ابلاغ شده اجرا می شود که در هر محله باید به تایید نقشه بردار برسد.
در صورت اجرای یک پارت در یک طبقه می توان دیگر دستک ها را توسط متر و ریسمان پیاد نمود. توجه داشته باشید در صورت صحت اجرای پارت اول. وظیفه اکیپ نقشه برداری پیاده سازی دو عدد کمربندی با چهار آنکزاژ در شرق و غرب طبقه بود که مابقی آنها با ریسمان کشی و متر کشی توسط اکیپ اجرا انجام می شد.
در پارت اول جهت پیاده سازی دقیق و خط دادن اجرایی به جوشکار می توان از برنامه رفرنس لاین استفاده کرد. همچنین توجه داشته باشید در هر مرحله با نقشه ابلاغی شروع به کار کنید. در پیاده سازی نقاط توجه داشته که ضخامت لامل ها طبق نقشه چند سانتی متر است.
کنترل پیاده سازی در نقشه برداری نمای ساختمان:

جهت حصول اطمینان از پیاده سازی نقشه ابلاغ شده می توان چند نقطه را به عنوان نقاط کنترل استخراج کرد و توسط متر کشی به حصول دقت اعتماد کرد. پس از نصب اجزای این ضلع توسط نصاب مهندس نقشه برداری می بایست دقت اجرایی را چک کرده و ازبیلت تهیه کند. جهت تهیه نقشه اجرایی توتال استیشن را در همان طبقه مستقر میکنیم و پس از توجیه دوربین با استفاده از برنامه HT transfer توتال استیشن شروع کنترل کامل کمربند و انکراژ ها را انجام می دهیم.
انتقال ارتفاع HEIGHT TRANSFER برنامه کاربردی در نقشه برداری نما

از این برنامه زمانی استفاده میکنیم که به هر دلیلی ارتفاع ایستگاه استقرار معلوم نباشد و نقشه بردار مایل باشد بر اساس ارتفاع نقطه دیگر به ایستگاه استقرار خود ارتفاع بدهید.
روش کار:
-از صفحه اصلی گزینه PROGRAM را انتخاب کنید
-از صفحه PROGRAM گزینه STATION SETUP را انتخاب کنید
-عملایات تنطیم JOP را انجام دهید
-با استفاده از کلید START وارد صفحه STATION SETUP شده و در صفحه
DESCRIP گزینه H-TRANS را انتخاب نموده و کلید نرم افزاری CONT را انتخاب کنید.

در این مرحله مختصات ایستگاه استقرار را وارد کنید
توجه: در این مرحله نیازی به وارد کردن ارتفاع ایستگاه نیست زیرا که به فرض ارتفاع ایستگاه برای ما نامعلوم میباشد
در این مرحله مشخصات نقطه هدف که دارای ارتفاع مشخص و معلوم میباشد را به دستگاه معرفی میکنیم:

نکته: برای معرفی نقطه جدید از کلید ENH و برای فراخوانی نقاط از حافظه از کلید LIST استفاده میکنیم. در این صورت وارد صفحه زیر می شویم و گزینه MEAS را انتخاب میکنیم.

پس از انتخاب گزینه MESA که پس از یافتن منشور اندازه گیری انجام شد وارد صفحه زیر می شویم.

پس از نمایش صفحه بالا گزینه گزینه COMPUTE را انتخاب میکنیم و وارد صفحه زیر میشویم:

در این حالت مختصات ایستگاه بر اساس محاسبات انجام شده بر روی ارتفاع نمایش داده میشود و در این حالت میتوان با استفاده از کلید SET عملیات تعریف ایستگاه و توجیه دستگاه را انجام داد.
پس از انتخاب SET وارد صفحه زیر میشویم در این حالت گزارشی از ارتفاع محاسبه شده و احیانا ارتفاع معرفی شده و اختلاف بین آنها در اختیار نقشه بردار قرار میگیرد تا به اختیار ارتفاع مد نطر خود را در نظر بگیرد.


F1( BACK) – بازگشت به صفحع قبل
F2( OLD) – تنظیم بر اساس ارتفاع ایستگاه معرفی شده
F3( AVERAG)- تنظیم بر اساس ارتفاع میانگین
F4( NEW) – تنظیم بر اساس ارتفاع ایستگاه محاسباتی
در صورت تمایل در صفحه STATION SETUP RESULT میتوان با استفاده از کلید ADD PTبرای انتقال ارتفاع از نقطه دیگر نیز استفاده کرد.
مستند سازی مهندس نقشه برداری در پروژه نما

توجه داشته باشید می بایست در طول پروژه به مستند سازی و ساخت آرشیو از اطلاعات هندسی پروژه بپردازیم. داشتن مستند پوشه بندی با تاریخ برداشت ها و تصاویر اجرایی از اهمیت ویژه برخوردار است.
علت تاکید ما بر تهیه مستندات بدین علت است که مهندس نقشه برداری نقشه راهبری پروژه را دارد و در صورت بروز مشکلی که حتی به مهندس نقشه بردار ارتباط ندارد، ابتدا شخص نقشه بردار در تیر رس اتهام است. در صورت داشتن آرشیو قوی از مستندات این نگرانی را از خود دور خواهید کرد که در صورت بروز خطا می توانید دفاع تمام و کمال از خود داشته باشید. پس از برداشت و ترسیم موقعیت کمر بند، و انکراژ و اجرای دقیق تا حدود ۳ میلی متر به گزارش پرمیت تحویل به نظارت را آماده می کنیم. در صورت اجرای دقیق طبق بازه زمانی و تحلیل و بررسی توسط نظارت پرمیت مربوطه تایید می شود.

به پیوست پرمیت یه نسخه از دیتا برداشت توتال استیشن با فرمت IDX تحویل می شود جهت بررسی صحت دیتا برداشتی. برخی ناظرین به عات سخت گیری های زیاد دیتا را مستقیم خودشان از دوربین نقشه برداری تخلیه می کنند. زیرا در موارد زیادی برخی مهندسین نقشه بردری اقدام به دستکاری فایل IDX خروجی می کنن. در این مواقع نسبت به این موضوع جبهه نگیرید زیرا تشنج در کارگاه به نفع مهندس نقشه بردار نیست. در صورت اطمینان از کارتان از این موضوع واهمه نداشته باشید.
پس از تایید شدن پرمیت پس از جوشکاری کامل کمربند و انکراژ با دقت بالا توسط جوشکار اکیپ نصاب زمان نصب پنل هاست. در صورتی که در مرحله نصب آنکراژ ها دقت مناسب باشد اکیپ اجرا پنل ها را نصب میکنند.
پس از نصب پنل ها اکیپ نقشه برداری می بایست صحت اجرای پنل ها را بررسی کنند. جهت بررسی صحت اجرا می توان از برنامه رفرنس لاین استفاده کرد. توجه داشته باشید در هر محله از کار صحت توجیه دوربین نقشه برداری نقش کلیدی دارد. زیرا در صورت عدم دقت در نصب پنل ها یا مراحل دیگر در صورتی که دوربین صحیح توجیه نشود یا توجیه با خطا داشته باشیم این امر در کل کار تاثیر گذار خواهد بود.
پس از اصلاح پنل ها توسط اکیپ نقشه برداری می بایست دیتا برداشتی و نصب پنل ها را به تایید نظارت برسانیم. در صورت صحت نهایی کنترل و تایید ارجای پنل ها مجدد نامه پرمیت یا اوردر را به نظارت جهت تحویل ارائه می دهیم.
کنترل و بررسی حرکت سازه یکی از مهمترین بخش های هر پروژه نقشه برداری مخصوصا نقشه برداری نمای ساختمان می باشد. جهت حصول دقت در امر کنترل و بررسی فاکتور های ذیل تاصیر گذار است:
- شبکه بندی
- توجیه
- کالیبره توتال
- سلامت سه پایه
- برداشت
- ترسیم
در هر وجه ساختمانی که نیاز به نقشه برداری نما دارد مکان مشخصی برای استقرار(سانتراژ) دوربین مشخص کنید. همچنین یک طبقه در میان بر روی کمر بندی در هر ضلع و هر ضلع تعدادی منشور برچسبی استفاده کنید.
توسط قرائت منشور های برچسبی در واقع کار مانیتور سازه را انجام می دهیم و هر گونه تغییر رفتار را متوجه خواهیم شد.
گزارش روزانه عملیات نقشه برداری نما:
- گزارش روزانه و مستند سازی
- چک و بررسی دقت توتال استیشن و سه پایه
- چک و بررسی دیتا های ابلاغی
- چک نهایی نقاط خروجی جهت پیاده سازی
- استفاده از نمودار و برنامه نویسی جهت ترسیم
- چک کردن دقت استقرار
شاپ دراوینگ (درایینگ) نما

نقشه های کارگاهی که با نام تخصصی شاپ دراوینگ در بین مهندسین مرسوم می باشد در واقع خلا بین مهندس طراح و مهندس مجری را به نحوی کاملا دقیق پر می کند. پس از آنکه نقشه های معماری توسط آرشیتکت طراحی و ارائه می شود ، سازه باید توسط یک مهندس سازه طراحی شود تا ابعاد و مقاطع دقیق ، محل اتصال نشیمن ها ، جزئیات سوراخکاری قطعات انکراژ های نما مشخص شود.
حساسیت و دقت کار در نقشه های کارگاهی از اهمیت ویژه برخوردار است و این مرحله از کار توسط یک مهندس عمران انجام می گردد. نقشه های کارگاهی معمولا بوسیله نرم افزارهای مهندسی مانند اتوکد (AUTOCAD) ، تکلا (TEKLA) و … تهیه می گردد، اما با توجه به دقت نرم افزار تکلا و محیط سه بعدی آن ، به دیگر نرم افزارهای مهندسی ارجحیت ویژه ای دارد.
مزایای تهیه نقشه شاپ در نقشه برداری نما:
- ارایه مدل سه بعدی کمک شایان توجهی به کاهش خطای انسانی در ضمینه طراحی سازه و قرارگیری المان های مختلف.
- افزایش سرعت به دلیل استفاده از اتصلات هوشمند .
- تهیه نقشه تک تک قطعات به کار رفته در سازه.
- تهیه نقشه های مربوط به مونتاژ تمام قطعات.
- سرعت بخشیدن به عملیات نصب به دلیل برطرف شدن تمامی بر خوردهای موجود بین اعضای سازه.
- تهیه گزارش از جمله لیست قطعات مونتاژ ، لیست جزء به جزء قطعات ، متریال لیست ، لیست پیچ ومهره استفاده شده در سازه.
- تهیه نقشه های نصب جهت سهولت و سرعت بخشیدن به کار نصب سازه.
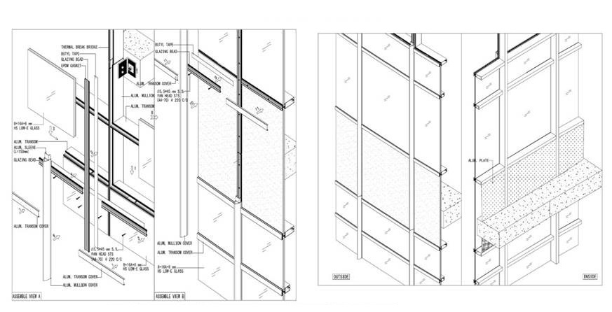
نقشه برداری و اجرای نمای کرتین وال

نمای کرتین وال به پوسته خارجی ساختمان گفته می شود که در آن سطح خارجی نما را با پروفیل های آلومینیومی موسوم به لامل شبکه بندی و سپس از متریال شیشه یا مصالح دیگر(عموما شیشه) برای پر کردن فضای بین لامل ها استفاده می شود.
گام اول جهت نقشه برداری نما برداشت دقیق ازبیلت سازه در جهات مختلف و تشکیل مدل سه بعدی نما در نرم افزارهای نقشه کشی جهت بهره برداری طراح می باشد. همچنین می بایست مهندس نقشه بردار آشنایی کامل با نحوه اجرای استراکچر و المانهای نصب نما؛نظیر دستک ها و لامل ها و ریلها که جزء اصلی پروژه اجرایی هستند داشته باشد. در هنگام نصب انواع نما نقشه بردار می بایست عملیات ذیل را انجام بدهد:
- پیاده سازی خطوط افقی و عمودی
- و خط ارتفاعی مورد نیاز عوامل اجرایی
- جهت رعایت هندسه درست نما
در این نقشه برداری و اجرای نما دقت زاویه ای و برد لیزر دوربین توتال استیشن و همچنین استحکام شبکه مختصات استفاده شده بسیار حائز اهمیت هست. همچنین انطباق محور دیدگانی توتال با نور مرئی و تارهای رتیکول( هممحوری).
عدم تطابق محور های دیدگانی در توتال استیشن ها

عدم تطابق محور های دیدگانی EDM (عدم تطبیق لیزر پوینتر و تار رتیکول) در توتال استیشن ها موضوعی است که در اثر تکان های شدید دستگاه در حین حمل و نقل رخ می دهد و یکی از دلایل عدم کالیبره بودن دستگاه ها است.
اساسا عدم انطباق محور دیدگانی با محور سیستم طولیاب لیزری دستگاه در فواصل بلند مشکل ساز است زیرا با افزایش طول بین این دو محور اختلاف بین نقطه اندازه گیری و نقطه مورد نظر اپراتور افزایش می یابد.
نکته حائز اهمیت این است که این خطا در عملیات نقشه برداری روزانه آشکار نمی شود و می باید طی دوره های چند ماهه (مثلا هر سه ماه یا هر شش ماه یک بار) کنترل شود دلیل آن هم این است که این اختلاف عدم تطابق، یک شیفت ثابت است که در هنگام توجیه دوربین برای تمامی ایستگاه های یکسان در نظر گرفته می شود و از این رو دوربین با دقت مطلوب توجیه می گردد. البته شرایطی هم وجود دارد که این عدم انطباق در هنگام توجیه دوربین آشکار شود. به عنوان مثال در هنگام توجیه به روش ترفیع (resection) اگر فواصل ایستگاه ها به یک اندازه نباشد یعنی یک ایستگاه از دوربین 300 متر و ایستگاه دیگری از دوربین 20 متر فاصله داشته باشد این خطا در هنگام توجیه آشکار می شود.
راهکار تشخیص :
ابتدا دوربین را در نقطه ای به عنوان مثال نقطه A مستقر کنید و تراز نمایید. سپس در فاصله 50 متری (هر چه بیشتر بهتر، اما جهت جلو گیری از پخش شدگی لیزر بیشتر از 100 متر نشود) روی یک دیوار علامتی را مشخص کنید. (بهترین گزینه پرینت یک سیبل روی یک کاغذ سفید است) علت عدم استفاده از Tape سختی تشخیص Laser Pointer بر روی Tape است).
حال با دوربین به دقت به مرکز علامت نشانه روی کنید و Laser pointer دوربین را روشن نمایید، حال به سراغ علامت رفته تا وضعیت را برسی کنید. مرکز لیزر را علامت بزنید سپس بار دیگر نشانه روی را در حالت دایره به راست تکرار کنید و دوباره مرکز Laser pointer را علامت بزنید. این دو علامت نسبت به علامت مرکز سیبل حالت قرینه دارند و هر چه فاصله شان نسبت به هم بیشتر باشد انحراف محور دیدگانی با محور طولیاب لیزی دوربین بیشتر است. شرایط ایده آل این است که دو علامت با مرکز سیبل هر سه در یک نقطه باشند. در این صورت دوربین از لحاظ انطباق محور دیدگانی با EDM کالیبره می باشد. در صورت عدم کالیبره بودن دستگاه، آن را به مراکز کالیبراسیون معتبر ارسال نمایید.
میزان کارایی ، دوام و دقت تجهیزات مهندسی بستگی به نحوه نگهداری آن دارد.از آنجایی که در اکثر مواقع تجهیزات ما در پروژه های اجرایی در محیطی غبار آلود و شرایط نامساعدی قرار میگیرد بلطبع این شرایط روی دستگاه های ما تاثیر گذاشته و باعث افت کارآیی و ایجاد خطا در عملکرد آن می شود.در نظر داشته باشیم تجهیزاتی که ما در نقشه برداری زمینی با آن سر و کار داریم عمدتا ترکیبی از قطعات مکانیکی و الکتریکی می باشند و با ایجاد خلل در هرکدام از این قطعات قطعا” دچار افت در عملکرد و ایجاد خطاهایی همچون خطای Tilt axis ، خروج لیزر پوینتر از محور تار رتیکول ، سفتی و یا از کار افتادن رینگ فوکوس ، سفتی کف و… می شود
نقشه بردار نما باید قدرت تجزیه و تحلیل اطلاعات سه بعدی و استخراج اطلاعات از ایننقشه ها و تبدیل آنها به المانهای هندسی مورد نیاز اکیپ اجرا و نصب و کنترل آنها را داشته باشد.
مراحل اجرای نمای کرتین وال:
- تهیه دفترچه محاسباتی
- نقشه برداری نما و تهیه نقشه های شاپ
- اجرای زیرسازی
- نصب لامل ها
- نصب شیشه
- نصب نگهداره و درپوش
اجرای نمای کرتین وال

گام اول در اجرای کرتین وال تهیه فایل محاسباتی به منظور مشخص شدن میزان ممان اینرسی ساختمان و به تناسب آن انتخاب لامل مناسب پروژه می باشد. این میزان ممان اینرسی بر اساس آیتم هایی مانند فشار باد منطقه, فشار باد منطقه با توجه به ارتفاع کلی ساختمان و لوکیشن پروژه و مسائلی از این دست و توسط نرم افزارهای اختصاصی نمای کرتین وال محاسبه می گردد. طبیعی است که این محاسبات باید بدون کوچکترین اشتباهی و توسط متخصص آن تهیه و تنظیم شود.
نقشه برداری و تهیه نقشه های شاپ

گام دوم در اجرای نمای کرتین وال, تهیه نقشه های شاپ یا همان نقشه های فاز دو می باشد. استفاده از دوربین های توتال استیشن و تنظیم نقشه توسط متخصص نقشه برداری از مهمترین مراحل اجرای یک نمای کرتین وال می باشد. تمامی این نقشه های باید بدون کوچکترین خطایی در ابعاد و اندازه ترسیم شده باشند و کوچکتری خطا می تواند منجر به بروز خطا در مراحل پایانی کار گردد.
عملیات نقشهبرداری به منظور کنترل تمام اجزا و عوامل مؤثر در طراحی و اجرای دقیق نمای کرتین وال انجام میگردد. بدین ترتیب جهت مختصاتیابی و کنترل اجرای لاملها ، دستکهایی در نما تعبیه شده و روی آنها نقاطی مشخص میگردد که نقاط کنترل نامیده میشود.
در کلیه مراحل از طراحی گرفته تا مراحل نصب و در آخر تهیه نقشه ازبیلت حضور دائم مهندس نقشه برداری توصیه می شود. در واقع اطلاعات هندسی پروژه ار برداشت تا پیاده سازی توسط هد نقشه برداری پروژه انجام می شود.
برخی سازنده ها جهت کاهش هزینه ها به صورت پارت تایم از مهندس نقشه برداری استفاده می کنند و برخی مراحل اجرای سازه را بدون تهیه نقشه های اجرایی انجام میدهند که به روند اجرای هندسی پروژه لطمه وارد می شود.
بهترین مرحله برای تخمین دقیق میزان مصالح مورد نیاز برای اجرای نمای کرتین وال در همین مرحله و پس از تهیه نقشه های شاپ می باشد. طبیعی است که حضور مداوم یا پر تکرار مهندس نقشه بردار در حین اجرای نما می تواند به اجرای سریعتر و با کیفیت تر نمای کرتین وال منجر گردد.
زیرسازی نمای کرتین وال
گام سوم در اجرای کرتین وال, اجرای زیرسازی نما براساس نقشه های شاپ و فایل های محاسباتی می باشد. در این مرحله زیرسازی بر اساس میزان باری که قرار است پس از نصب لامل ها و شیشه بر روزی زیرسازی وارد می شود اجرا می گردد.تمامی اتصالات در این مرحله باید حداقل میزان خطا صورت بپذیرد.

هرچند که امکان رگلاژ در بعضی نقاط برای زیرسازی وجو دارد اما نباید از اجرای دقیق و با دقت بالای زیرسازی گذشت. حضور مداوم دوربین نقشه برداری در این مرحله می تواند به کاهش خطاهای احتمالی کمک شایانی کند.همچنین تمامی جوش های صورت گرفته در زیرسازی نمای کرتین وال مانند هر قسمت دیگری باید بر اساس استاندارد های شرکت ملی ساختمان صورت بپذیرد و توس مامور کنترل جوش مورد بررسی قرار بگیرد.
نصب لامل ها در نمای کرتین وال
پس از اتمام زیرسازی و چک کردن صحت اجرای آن , نوبت به نصب لاملهای عمودی( مولیون ها) و پس از آن نصب لامل های افقی (ترنزم) میرسد. بسته شیوه اجرای نما میتوان نصب لامل های عمودی و افقی را به صورت همزمان انجام داد. کلیه فرآیند نصب متعلقات شامل نصب لقمه ها یا لاستیک ها لامل در این مرحله صورت می پذیرد.

عدم اجرای صحیح لامل ها در این مرحله می تواند منجر به خسارات جبرات ناپذیری گردد.لازم است که بازدیدی از تمام جزئیات پس از اتمام نصب لامل های صورت بگیرد تا احتمال بروز خطا در این مرحله به صفر برسد.
نصب شیشه های نمای کرتین وال

پس از اتمام نصب لامل ها و چک کردن دیتیل اجرایی می بایست شیشه ها نصب گردد. در این مرحله می توان به سادگی با استفاده از دوربین نقشه برداری برداشت دقیق از ابعاد شیشه ها, چک کردن آن ها با نقشه های فاز دو ترسیم شده در ابتدای پروژه و سفارش شیشه های نمای کرتین وال داشت.
در نمای کرتین وال فیس کپ نصب شیشه های از بیرون ساختمان صورت می پذیرد. اگر زیرسازی و نصب لامل های با دقت بالا و توسط اکیپ اجرایی متخصص نصب گردیده باشد شیشه ها باید به طور کاملا صحیح در فضای بین لامل های قرار بگیرند. اجرای نمای کرتین وال سیستم فیس کپ نصب نگه دارنده های آلومینیومی به همراه لاستیک های مربوط به آن و سپس نصب درپوش ها یا کپ های نما است..وظیفه این متعلقات حفظ و تثبیت موقعیت شیشه در جای خودش است.
دو روش اجرای نمای کرتین وال:

1-اجرای کرتین وال با روش Stick
در این روش مراحل نصب و ساخت نمای کرتین وال کلا در محل پروژه صورت میگیرد و پس از محاسبات فنی و سازهای و حمل پروفیلهای آلومینیومی به محل پروژه، یا همان لاملها، سازه اصلی نصب و ایجاد میشود.
همچنین شبکه استکراچر ساز ای شیشه لاملهای افقی و عمودی ایجاد و سایز قابها برای سفارش شیشه گرفته میشود. در این روش غیر از مرحله اکسترود آلومینیوم یا همان تولید پروفیل آلومینیومی، تمامی مراحل مانند برش لاملها در محل پروژه انجام میگیرد.
ساخت و نصب کرتین وال با این روش جهت ساختمانهای معمولی اداری و تجاری، یا با طرحهای خاص متداول است و به تناسب همین موضوع هزینه کمتری را نیز در بر خواهد داشت. با نرم افزار طراحی در و پنجره می توانید به راحتی طراحی در و پنجره خود را انجام دهید.
2-اجرای کرتین وال با روش Unitized
روش یونیتایزد به معنای نصب یکپارچه نما اما با قطعات جداگانه است. در این روش کلیه قطعات و قابهای نمای کرتین وال در محل کارخانه ساخته و حتی شیشه نیز درون قابها نصب میشوند و سپس به محل پروژه حمل و به صورت کشویی در محلهای در مورد نظر نصب میشوند.
از نظر هزینه، این روش گرانتر از روش قبل است، اما مزایای فراوانی دارد. از جمله این مزایا میتوان به سرعت بالاتر در نصب و امنیت و استحکام بیشتر سازه به خصوص برای برجهای بلند اشاره کرد.
شرح فعالیت مهندس نقشه بردار در نقشه برداری نما:

- استفاده از دوربین های دقیق نقشه برداری ساخت سوئیس (Leica TS09) در دقت های 2 و 3 ثانیه با برد 1000 متر
- ترسیم مدل های سه بعدی Wireframe و Solid و ارائه خروجی در محیط نرم افزار های AutoCAD، و Revit
- ارائه نقشه های مناسب جهت متره برآورد – اجرا نما کامپوزیت ، کرتین وال ، اسپایدر، فریم لس ، استرچ متال ، منولیت
- طراحی داخلی و طراحی نما ، نقشه پایه BIM و …
- پیاده سازی دستک ها، ساپورت ها، لامل ها
- کار پیمانکاران نما
- ایجاد شبکه دقیق نقشه برداری به همراه ارائه گزارشات سرشکنی
نقشه برداری نما و تهیه نقشه کارگاهی

ابتدا در محل پروژه نقشه برداری برداشت کاملی از وضعیت استراکچر نما شامل ستون ها، دال ها، تیرها و کلیه عوارض موجود انجام می شود سپس بر اساس نتایج حاصل از این برداشت جانمایی سیستم نما روی برداشت کلی صورت می پذیرد.
در این حالت با توجه به عوارض موجود، نقشه واقعی محل قرارگیری عناصر نما مشخص می گردد. از طرفی با عنایت به کلیه کدها و عوارض مشخص شده و با توجه مقاطع لامل انتخابی که از محاسبات بدست می آید می توان نقشه های کارگاهی (Shop Drawing) و لیست های برش (Catting List) را تهیه و جهت انجام عملیات برش و مشاوره نمای شیشه ای نصب از آنها استفاده نمود .
پیاده سازی، اجراء و نصب نما
پس از انجام مشاوره و عملیات برداشت نقشه توسط تیم نقشه بردار، نقشه های برداشت روی نماهای موجود پیاده سازی و نقشه نمای واقعی ترسیم میگردد، پس از تهیه نقشه های کارگاهی، نقاط نقشه برداری شده توسط تیم نقشه بردار در محل پیاده سازی می گردد و محل لامل های عمودی روی دال طبقات مشخص میگردد.
مشاوره نمای شیشه ای با توجه به نقاط پیاده سازی شده می توان محل براکت ها و سازه های نگهدارنده اصلی و همچنین آکس مولیونها را روی نما مشخص و بعد از برش قطعات عملیات نصب و مونتاژ در محل کارگاه را انجام رساند. نقشه برداری نما دارای دو پارت برداشت وضع موجود نما جهت طراحی و نقشه برداری جهت پیاده سازی نما است. در دو پارت نقشه برداری نما نقش اول را مهندس نقشه برداری به عهده دارد.
جهت اجرای نقشه برداری نما و خط دادن به عوامل اجرایی و نصاب می بایست مهندس نقشه بردار به اصول اجرایی سازه های نیز آشنایی داشته باشد. به عنوان نمونه جهت نسب قطعات می تواند ایده های مناسبی را به نصاب بدهد و با همکاری دقیق پروژه با سرعت بیشتری اجرا شود. در پروژه های مختلف دیده می شود به دلیل عدم هماهنگی مهندس نقشه برداری با نصاب یا جوشکار در پیاده سازی و اجرای نقاط پروژه با مشکلاتی مواجه شده است. به صورت کلی نقشه برداری نما تفاوت چندانی با نقشه برداری در پروژه های دیگر ندارد تنها تفاوت کار کردن در بعد سوم است.
فیکس کردن نما کرتین وال:

در ابتدای فاز اجرای یک کمرند که به شکل قوطی فلزی می باشد روی یک سری دستک قرار می گیرد. دستک ها نیز از جنس قوطی فلزی از قبل تراز یابی شده و روی سازه نصب شده اند. نحوه اتصال دستک ها به ساز بسیار حائز اهمیت می باشد همچنین فواصل و ارتفاع قرار گیری آنها که توسط مهندس نقشه برداری با دقت بالا تراز یابی شده و موقعیت نصب آنها مشخص گردیده است.
موقعیت دستک طبق نقشه باید به گونه ای جانمایی شود که با آنکراژ برخورد نداشته باشد و تداخل در فیکس ایجاد نکند. کد ارتفاعی دستک در صورت استفاده اصولی از توتال استیشن جهت تراز یابی می تواند توسط توتال مشخص گردد. در صورت عدم هماهنگی دستک ها در تراز ارتفاع کمربند بالا رفته و در صورت یک چک ساده توسط تراز بنایی متوجه خطای کار خواهیم شد.
همچنین توجه داشته باشید دستک ها در کلیه طبقات باید از نظر ارتفاعی یک فاصله مشخص طبق نقشه داشته باشند و در واقع دقت هر دستک همانند دومینو به دستک پایین دست بستگی دارد. میزان تلورانی در حد 3 میلیمتر برای موقعیت دستک ها در نظر گرفته می شود.
بعد از انجام عملیات فیکس دستک ها و نصب کمربند می بایست دستک و کمربند توسط متر بررسی شود که آیا با عدد قرائت شده در توتال استیشن که با برنامه رفرنس لاین قرائت شده همخوانی دارد یا خیر. توجه داشته باشید در هر مرحله از سانتراژ توتال استیشن و توجیه از میزان دقت مکفی توتال استیشن اطمینان حاصل فرمایید زیرا در صورت بروز خطا اجرای مراحل بعد با خطا مواجه خواهد شد.
آموزش منو رفرنس لاین توتال استیشن لایکا
استفاده از منو reference line در پیاده سازی نقاط

فرض کنید دو نقطه با اختلاف ارتفاع با فاصله از یکدیگر داریم و وقتی این دو نقطه را با ریسمان به هم وصل میکنیم در این صورت هر نقطه از روی ریسمان دارای اختلاف ارتفاع مشخصی خواهد بود. در واقع حرکت بین دو نقطه با شیب متوالی را انترپوله مینامیم
تفاوت انترپوله با غیر انترپوله :
در حالت غیر از انترپوله هریک از این دو نقطه اگر مبنا قرار دهیم به صورت خط تراز حرکت مینماید مانند تصویر زیر که خط تراز مشخص گردیده.

محاسبه انترپوله به صورت دستی :
الف- با استفاده از کد ارتفاعی یا مقدار z دوربین در خالت surveying
(طول از مبنا تا نقطه*شیب با علامت)+کد مبنا=کد نقطه مورد نظر
مثال:
اگر نقطه شروع دارای کد 1000 و در فاصله 40 متر کد نقطه دوم 1000.50 و بخواهیم کد نقطه ای در فاصله 15 متر از نقطه اول محاسبه کنیم به روش زیر عمل میکنیم
1 = 1000.1- 1000 = اختلاف ارتفاع
.04 0+ = 25/1 = شیب طولی
(طول از مبنا تا نقطه *شیب با علامت )+کد مبنا= کد نقطه مورد نظر
1000.60= (15*0.04)+1000
ب-برای استفاده از انترپوله در توتال به این شکل عمل میکنیم:
در صورتی که بخواهید از این برنامه در حالت ارتفاع و موقعیت استفاده کنید جهت پیاده سازی مختصاتی و ارتفاعی ابتدا دوربین را توجیه کرده و برنامه reference line را فراخوانی میکنیم

توجه: از این برنامه در شرایط توجیه نبودن دستگاه نیز میتوان استفاده کرد جهت میانیابی ارتفاعی بین دو نطفه معلوم
به فرض پیاده سازی خط ارفاعی جدول بر مبنای سنگ قرنیز.
پس از فراخوانی برنامه مختصات نقطه یک و دو را وارد کرده در قسمت ref height گزینه را به interpolated تغییر می دهیم

در این حالت پس از انتخاب stake به شکل زیر طول 25 متر خواهیم داشت ( offset =0 ) و ارتفاع نیز 0 خواهد بود
در صورت مثبت یا منفی بودن عدد قرائت کمک را به ارتفاع صفر هدایت میکنیم به فرض عدد +10 سانتی متر را قرائت میکنید میخ باید 10 سانتی متر پایین تر زده شود. لاین و آفست نیز به روش معمول و همزمان پیاده میشود.

دقت و صحت در پروژه های نقشه برداری از جمله نما که می توان آن را در دسته نقشه برداری صنعتی قرار داد دقت حرف اول و آخر را می زند. توجه داشته باشید کار را چندین بار چک کنید زیرا حصول دقت صرفا با چک کردن بوجود می آید.
کمربند های نصب شده حتما طی چند مرحله بررسی شود با دقت مطلوب فیکس شده و طبق نقشه اجرا شده باشد. یک نکته مهم که می بایست به آن توجه کنید در قرائت کمربند،قوطی یا کلیه سطوح تیره است. توجه داشته باشید مثلا در محل نصب آنکراژ روی کمربند جهت قرائت با اسپری رنگ روشن مخصوصا سفید قرار دهید تا قرائت با دقت بالا صورت گیرد. به صورت کلی در قرائت با لیزر نکات مهمی وجود دارد که می بایست رعایت کنید مخصوصا عدام قرائت سطوح با رنگ تیره یا قرائت مایل سطوح که باعت خطا در طولیابی خواهد شد.
در استقرار توتال استیشن نیز می بایست حداکثر دقت را به کار گرفت و از سلامت ترابراک و سه پایه اطمینان حاصل کرد. در هر محله خروج توتال استیشن از تراز می بایست توسط نقاط کنترل دقت را بررسی نمود.
توجه داشته باشید همواره می بایست کمپاساتور توتال استیشن روشن باشد. دیده می شود برخی مهندسین در هنگام تخلیه و وارد کردن دیتا به دستگاه بعد از خاموش کردن کمپانساتور و موقع سانتراژ دوباره کمپانساتور را فعال نمی کنند.
موارد اجرایی و فنی در ترسیم نقشه های نما

خصوصيات اصلي يك نقشه نما استاندارد به شرح ذیل:
يكي از مراحلي كه يك نقشه بردار با آن روبرو خواهد شد تهيه يك نقشه مي باشد. بر اين اساس سه خصيصه اصلي يك نقشه به شرح زير مي باشد :
-دقت : منظور از دقت اين است كه در نقشه هر نقطه تا حد ممكن در موقعيت درون خود نسبت به نقاط ديگر قرار گيرد . اين كيفيت نقشه را كيفيت هندسي مي گويند كه در درجه اول مربوط به نقشه برداري و متخصص فتوگرامريز مي باشد .
-صحت : كيفيت صحت در نقشه عبارت است از اطلاعات نقشه و شكل عوارض و اسامي و اعداد و علائم مبهم نبوده و دور از اشتباه باشد .
ميزان دقت و صحت هر نقشه كيفيت بنيادي آن را تشكيل مي دهد و در مورد صحيح بودن ميزان دقت تهيه كنندگان اطلاعات جغرافيايي مورد بحث مي باشد و يك كارتوگراف در ارزيابي و انتخاب اطلاعات نقش مؤثري داشته و مسئول شناخته مي شود .
-زيبايي : كيفيت هنري نقشه عمدتاٌ مربوط به كارتوگراف مي باشد . زيبايي يك نقشه علاوه بر امكانات فني ومعلومات علمي و تجربه هر كارتوگراف و به استعداد فطري در هنر طراحي و ترسيم بستگي دارد .
ترسیم نقشه فاز 2 نما
جهت اجرایی شدن طرح نمای ساختمان می بایست پیش از اجرا، نقشه های دقیق فاز دو ترسیم شوند تا هم از خطاهای احتمالی در حین اجرا پیش گیری شود و هم تطابق لازم بین نقشه های معماری و سازه و مکانیک و الکتریک بررسی شود.
تطابق کد ارتفاعی نما با نقشه های فاز دو معماری
پس از فاز دو کردن پلانها و با توجه به در نظر گرفتن مواردی چون شیب بندی و عایق کاری ساختمان در تراسها و بام ، ممکن است کد ارتفاعی درج شده در نمای فاز یک تغییراتی داشته باشد . از این جهت می بایست کدهای ارتفاعی نما با کدهای درج شده در پلان فاز دو هماهنگ شود.
تطابق نما با نقشه های سازه
جهت فاز دو نما ، لبه خارجی پلان ساختمان که به نما منتهی می شود میباست با نقشه های سازه هماهنگ شود. محل قرار گیری بادبندها در نما باید بررسی شود تا تداخلی با درب و پنچره ها و بازشوها نداشته باشد.همچنین می بایست محل قرارگیری تیرهای طبقات جهت اتصال به سازه نما بررسی شود و دقت شود که تیرها از سطح نما بیرون تر نباشد.
مرتب کردن خطوط نما و لایه بندی
پس از تطبیق نقشه های نما با سازه می بایست خطوط نما با خطوط ترسیم شده در پلان فاز دو هم راستا شود.به عبارتی چون در پلان فاز دو نازک کاری ها در نظر گرفته شده است، خطوط نمای فاز یک اختلافاتی با نمای فاز دو خواهد داشت. از این جهت بهتر است نمای فاز دو از ابتدا و بر اساس نقشه های فاز دو ترسیم شود.
جهت سهولت در کار فاز دو لایه بندی از اهمیت ویژه ای برخوردار است. تمام خطوط هم ارزش باید در لایه مخصوص خود قرار بگیرند. خطوط دیوار ها در لایه دیوار و ضخیم تر خطوط پله و نرده ها در لایه بعدی و کمی نازک تر و خطوط دربها و پنجره ها در نازک ترین لایه قرار میگیرند. همچنین جهت انجام اصولی کار می بایست دربها و پنجره هایی که در یک تیپ قرار دارند در یک بلوک قرار گرفته و در نما کپی شوند.
درج کدهای ارتفاعی در نما
با توجه به سبک طراحی نمای ساختمان ، در طرح ، پیش آمدگی ها و فرورفتگی هایی وجود دارد. جهت تهیه نقشه فاز دو نما می بایست سطحی از نما را که دارای فرورفتگی و برجستگی نمی باشد به عنوان نقطه مبنا یا ۰ در نظر گرفت . سایر نقاط بر اساس نقطه صفر کد گذاری میشوند و مثبت (برجستگی ها) و منفی (فرو رفتگی ها) در نظر گرفته می شوند.
بزرگنمایی و اندازه گذاری نما
جهت اندازه گذاری نما ، می بایست نما را بزرگنمایی کرد. جهت بزرگنمایی، نما را به چند بخش تقسیم بندی میکنیم و هر بخش را در یک شیت قرار می دهیم . در این مرحله تمام جزئیات نما می بایست اندازه گذاری شود. جهت اندازه گذاری قوس ها می بایست شعاع قوس، طول قوس و طول پای قوس تا شروع قوس مشخص شود.
مشخص کردن مصالح مورد استفاده در نما
در ترسیم نمای فاز دو می بایست تمام مصالح با ابعاد دقیق آن معرفی شود.جهت معرفی مصالح در نما از هاشور های مختلف استفاده می کنیم.تمام مصالح یکسان با هاشور مشابه مشخص می شود و در کنار شیت نما هر مصالحی با هاشور مخصوص به آن مشخص می شود.روش دیگری که جهت مشخص کردن مصالح استفاده می شود، نوشتن نام مصالح در کنار نما و مشخص کردن محل آن با فلش در نما است. این روش معمولا زمانی استفاده می شود که مصالح استفاده شده در نما محدود باشد.
ترسیم برش های افقی و عمودی از نما
جهت فاز دو کردن نما می بایست برشهایی افقی (پلان)و عمودی (وال سکشن) از نما ترسیم شود. این برش ها باید در هر ترازی از نما که نیاز به شفاف سازی دیتیل ها دارد ، ترسیم شود. معمولا جهت کدهای ارتفاعی که اطلاعات یکسانی دارند از یک برش افقی به صورت تیپ طبقات استفاده می شود. این برش های افقی و وال سکشن ها شامل اطلاعاتی نظیر اتصالات نما به سازه و ساشی کشی ها و متریال مورد استفاده در نماست.
مراحل کار نظارت نقشه برداری کارگاهی:

- برداشت ، محاسبه و کنترل سایت
- انجام برداشت ھای دقیق و مسطحاتی
- انجام محاسبات دقیق و شبکه بندی
- کنترل دقیق عملیات نقشه برداری
- ارائه محاسبات انجام شده با فرمت ھای کاملا گویا و واضح.
- بایگانی بروز بصورت ھارد کپی و سافت کپی از احجام عملیات خاکی و ھمکاری با پیمانکاران
- رسیدگی به پرمیت ھای صادره از طرف پیمانکاران سایت
- سرعت و دقت پرسنل در پاسخگویی به پرمیت ھا در اسرع وقت
- درصد بسیار پایین خطا و اشتباه در پاسخگویی به پرمیت ھا و پیگیری و کنترل مداوم
- دقت بسیار بالای ایستگاه ھای نقشه برداری سایت که در نتیجه استفاده از پرسنل مجرب و دستگاه ھای
- نتیجه دقت بالای ایستگاھھای نقشه برداری جلوگیری از اتلاف زمان و اجرای دقیق سازه
- انجام کلیه کارھای نقشه برداری سایت و ھمچنین کارھای محوله از طرف کارفرما
- تهیه ازبیلت از سازه ھای مختلف اجرا شده در سایت و ارائه فایل ھای کامپیوتری
- بکارگیری پرسنل مجرب نقشه برداری و تجهیز اکیپ ھا با استفاده از دستگاه ھای دقیق و پیشرفته نقشه برداری
- همکاری مداوم با نقشه بردارھای پیمانکاران و آموزش آنھا
- ایجاد یک سیستم بایگانی به روز پرمیتھا شامل ساعات ورود و خروج
- بکار گیری یک نفر امور اداری در سایت ھا جھت رسیدگی به کلیه امور اداری پرسنل
مستند سازی در پروژه
![]()
متاسفانه همه ما در پروژه ها شاهد این مورد هستیم که هر گونه نقص و کاستی در اجرا را به عهده نقشه بردار می گذارند. قسمتی از این دلیل به خود ما بر میگردد. یکی از دلایل این امر کارهایی است که انجام میدهیم و مستند سازی نمیکنیم تا مواقع لزوم از آن استفاده کنیم. یک مهندس نقشه بردار حرفه ای حتما می بایست پس از پایان هر کار مستندات را ضبط و یادداشت نماید.
به مثالی در مورد تونل موضوع را روشن تر خواهم کرد. در تونل هنگامی که سینه کار را برای پیش روی مجدد به اصطلاح مارک میکنید( خط کنتور یا پترن حفاری یا خط مقطع میزنید). بایستی حتما نقاط دور تا دور را که زدید در حافظه دوربین سیو نمایید و علاوه بر قرار دادن در فایل اکسل و مستند سازی استاندارد ، مختصات چند نقطه کلیدی را در گزارش روزانه یاداشت و به دفتر فنی اراءه نمایید
تا در مواقعی که به علت سهل انگاری عوامل اجرا مسیر تونل منحرف میگردد و اولین متهم را مهندس نقشه بردار می دانند و به سراغتان می آیند .شما نیز در حالی که مشغول نوشیدن چای هستید با آرامش تمام چای را نوش جان کنید و بتوانید بدون هیچ دغده ای مستندات را رو نمایید و از خود دفاع کنید.
موارد مهم راجع به تجهیزات،توجیه توتال استیشن در کارگاه
مواردی که در ادامه مقاله تشریح شده جز امور مهم نقشه برداری کارگاهی و مخصوصا نقشه برداری نما می باشند. توجه داشته باشید در صورتی که علاقه مند به نقشه برداری نما می باشید می بایست ابتدا مواردی که در ادامه مقاله تشریح شده را کاملا مشرف شوید.
استفاده بهینه از توتال استیشن هاي لایکا در کارگاه:

1-همیشه منوهاي ظاهر شده روي صفحه نمایشگر را مطالعه نمائید سپس گزینه تائید یا رد را وارد نمائید.
2-قبل از اتصال توتال به کامپیوتر ، حتما دستگاه خاموش باشد و سپس کابل را متصل نمائید.
3-پس از تخلیه اطلاعات ابتدا توتال را خاموش کرده و سپس کابل را جدا نمائید.
4-در هنگام روشن بودن دستگاه در پوش باتري را باز ننمائید (باتري را خارج نکنید)
5-قبل از اتمام کامل شارژ باتري ، باتري را تعویض نمائید و به این شکل نباشد که تا انتهاي شارژ استفاده شده و بناگاه توتال خود بخود خاموش گردد.
6-در منوي اصلی دستگاه ، تا حد امکان وارد بخش TOOLS نشوید چون ابزاري که در این قسمت میباشند براي استفاده کاربر مناسب نیست بعنوان مثال در همین بخش گزینه Adjust ، اگر تنظیمات این بخش را تغییر دهید تمام زوایا بهم میریزد. یا گزینه Lic.Key که مربوط به فعالسازي و ورود لایسنس برنامه هاي جانبی خریداري شده میباشد. همچنین اگر Pin را فعال کنید و کابر به اشتباه چند بار PIN غلط وارد کرده و همچنین PUK نیز غلط وارد شود . دستگاه قفل کرده و برخی اوقات بایستی کل برنامه هاي توتال توسط سرویس کار ، مجددامجدداً نصب گردد که هزینه بالایی نیز در بر خواهد داشت.
7-به تصور اینکه دستگاه قابلیت ذخیره 10000 برداشت را دارد ، تخلیه را موکول به پر شدن کل این حافظه ننمائید زیرا اولااولاً در کنار اطلاعاتی که شما ذخیره میکنید خود دستگاه نیز از این فضا بعنوان Temp استفاده مینماید و ثانیاً فرض کنید در دراز مدت روي حافظه نقاطی مانند “بد سکتور” ایجاد شده باشد. در اتمام هر روز کاري اطلاعات تخلیه شده و حافظه پاك شود براي اینکار وارد Manage شده سپس وارد صفحه دوم شده و گزینه Delete Job Memory را انتخاب نمائید تا حافظه حذف گردد. بیشتر کاربرانی از این ناحیه ضربه میخورند که حرفه اي هستند. تصور کنید چندین روز صبر نمودید تا شرایط جوي مناسب براي کار ایجاد شده و با شرایط سخت در کوه و کمر و بیابان برداشت اطلاعات کردید و بناگاه منویی روي دستگاه ظاهر و شروع به درصد انداختن مینماید و دستگاه خاموش شده و کل اطلاعات چند روز کاري از دست میرود.
8-در عکس زیر به بخش فرمت وارد نشوید !! این گزینه با فرمتی که در کامپیوتر ها میشناسید تفاوت بسیار دارد. منظور نوع پیکر بندي ذخیره برداشت ها میباشد. مثلا یک نو فرمت X / Y / Z / Date
کاربرد کمپانساتور در توتال استیشن

کمپانساتور ها كارشان تعدیل کردن است بسته به نوع دوربین از 4 تا 6 دقیقه تیلت رو محاسبه و تصحیح ميكنند و زمانی که بیشتر از این مقدار از تراز خارج شوند چون از توانایی کمپانساتور خارج است آن را اعلام میکنند.
البته مشكل که براي خیلی از دوربین های پيش آمده به علت استفاده از ترایبراک و سه پایه غیر تولید شده در کارخانه های اصلی هست پس اگر از ترابراک و سه پایه مطمئن نیستید دوربین را روی پیلار قرار دهيد و تراز کنید سپس یک پیچ رو قدری بچرخانيد و اگر از تراز خارج نشد ميتوانيد یقین پیدا کنید که مشکل دارد.
توصیه دیگر به همکاران نقشه بردار این هست که حتما همیشه پس از اتمام کار نقشه برداری اول کمپانساتور رو داخل دوربین خاموش كنيد و بعد دوربین رو خاموش كنيد. این کار به افزایش عمر و دقت كمپانساتور کمک ميكند دوستان چون کمپانساتور یک قطعه الکترونیکی هست و حتي زمانی که دوربین خاموش باشد اگر اون فعال باشد کار ميكند
تست سلامت كمپانساتور:
پس از استقرار دستگاه و اعمال تراز دقيق کمپانسور را روشن كنيد .اجراي برنامه ی مثلا survey بعد دوربین رو خیلی کم از تراز خارج كنيد .اگر سالم باشد باید اخطار دهد که دوربین از تراز خارج شده و منو دستگاه برگردد به صفحه تراز.
شاید تا به حال این سوال برای شما پیش آمده باشه که با توجه به اینکه در تنظیمات EDM توتال استیشن ها ضریب منشور (Prism Const) برای حال Tape یا همون استفاده از منشور برچسبی و حالت استفاده از لیزر (RL) عدد 34.4 میلی متر است چرا این دو حالت مجزا در دستگاه وجود دارد در صورتی که میتوان در حالت استفاده از منشور برچسبی میشه از همون حالت لیزر استفاده کرد!!!!!
تعمیر کاران دستگاه توتال استیشن می گویند با توجه به اینکه در حالت استفاده از Tape قدرت انعکاس لیزر دوربین در صورت استفاده کردن از حالت RL به شدت افزایش پیدا کرده و به مرور زمان باعث آسیب دیدن EDM دستگاه خواهد شد. پس می بایست در صورت استفاده از منشور برچسبی EDM دستگاع روی حالت IR-Tape تنظیم باشد.
ضريب منشور

برای بدست اوردن ضریب منشور های شرکت لایکا و استفاده از اونها در دیگر دوربینها، در قسمت ای دی ام توتال استیشن لایکا منشور مورد نظر رو انتخاب کنید، در خط Leica Const ضریب منشور مورد نظر برای استفاده از محصولات لایکا و در خط Abs Const ضریب منشور مورد نظر برای برندهای غیر لایکا می باشد.
نکات مهم در استفاده از تريبراك و سه پايه
استفاده از تريبراك اورجينال باعث بالارفتن عمر پيچهاي متصل به دوربين خواهد شد و دوره كاليبراسيون عقب تَر خواهد افتاد در صورت استفاده از تريبراك اورجينال در هنگام تراز تا حد مقدور تراز دوربين رو با سه پايه فيكس كنيد درصد باقيمانده تراز رو با پيچهاي تريبراك تراز كنيد بعضاً همكاران درصد زيادي از بار تراز رو با پيچهاي تريبراك تنظيم ميكنن كه عمر پيچها رو در اثر فشار كوتاه تَر ميكند.
استفاده از تريبراك اورجينال باعث بالارفتن عمر پيچهاي متصل به دوربين خواهد شد و دوره كاليبراسيون عقب تَر خواهد افتاد در صورت استفاده از تريبراك اورجينال در هنگام تراز تا حد مقدور تراز دوربين رو با سه پايه فيكس كنيد درصد باقيمانده تراز رو با پيچهاي تريبراك تراز كنيد بعضاً همكاران درصد زيادي از بار تراز رو با پيچهاي تريبراك تنظيم ميكنن كه عمر پيچها رو در اثر فشار كوتاه تَر ميكنه.
استفاده از تريبراك اصل نقش مهمي در دقت بالاي كار دارد، يك سازه محكم در صورت نداشتن فنداسيون مناسب كاربري خوبي نخواهد داشت به ويژه در توتال استيشن كه تراز دستگاه نقش مهمي در دقت كار خواهد داشت.
شايد در لحظه دوربين تراز شود ولي به مرور زمان به دليل نداشتن كيفيت در حد قطعات خود دوربين خطاهاي در كار بوجود خواهد آورد،در هنگام كاليبراسيون حتماً سلامت تريبراك رو هم به تاييد شركت مربوطه برسانيد.
راجع به سه پايه هم مانند تريبراك در صورت استفاده از سه پايه اورجينال دقت بيشتري در كار خواهيد داشت، كيفيت سه پايه بستگي به نوع چوب مصرفي و پيچهاي اتصال و نوع فلز مرغوب مصرفي و مهمتر از همه صفحه فوقاني محل اتصال با تريبراك دارد.
چك كردن ادواري محل هاي اتصال و محكم بودن پيچها نقش مهمي در تراز دوربين دارد. به اين نكته مهم توجه داشته باشيد هميشه از كاور صفحه اتصال سه پايه استفاده كنيد كه در اثر ضربه از كيفيت صفحه كاسته نشود. در مرحله سانتراژ و زماني كه دوربين به سه پايه متصل است پايه ها را محكم فشار ندهيد زيرا اين كار به پيچهاي اتصال توتال به تريبراك آسيب خواهد زد و زمان سانتراژ روي نقطه بعد چرخش ٣٦٠ درجه توتال از سانتراژ خارج ميشود. اگر بيش از ٥ ميليمتر از سانتراژ خارج شود دستگاه به تعمير نياز خواهد داشت بنا بر اين استفاده از تريبراك و سه پايه اورجينال به كيفيت كار شما خواهد افزود. وقتي كه دستگاه سوئيسي استفاده ميكنيد حتماً از تريبراك و سه پايه اورجينال همون شركت كه در كشور هاي ديگه اسمبل ميشه استفاده كنيد.
استفاده از تريبراك اصل نقش مهمي در دقت بالاي كار دارد، يك سازه محكم در صورت نداشتن فنداسيون مناسب كاربري خوبي نخواهد داشت به ويژه در توتال استيشن كه تراز دستگاه نقش مهمي در دقت كار خواهد داشت.
شايد در لحظه دوربين تراز شود ولي به مرور زمان به دليل نداشتن كيفيت در حد قطعات خود دوربين خطاهاي در كار بوجود خواهد آورد،در هنگام كاليبراسيون حتماً سلامت تريبراك رو هم به تاييد شركت مربوطه برسانيد.
راجع به سه پايه هم مانند تريبراك در صورت استفاده از سه پايه اورجينال دقت بيشتري در كار خواهيد داشت، كيفيت سه پايه بستگي به نوع چوب مصرفي و پيچهاي اتصال و نوع فلز مرغوب مصرفي و مهمتر از همه صفحه فوقاني محل اتصال با تريبراك دارد.چك كردن ادواري محل هاي اتصال و محكم بودن پيچها نقش مهمي در تراز دوربين دارد.
به اين نكته مهم توجه داشته باشيد هميشه از كاور صفحه اتصال سه پايه استفاده كنيد كه در اثر ضربه از كيفيت صفحه كاسته نشود. در مرحله سانتراژ و زماني كه دوربين به سه پايه متصل است پايه ها را محكم فشار ندهيد زيرا اين كار به پيچهاي اتصال توتال به تريبراك آسيب خواهد زد و زمان سانتراژ روي نقطه بعد چرخش ٣٦٠ درجه توتال از سانتراژ خارج ميشود.
اگر بيش از ٥ ميليمتر از سانتراژ خارج شود دستگاه به تعمير نياز خواهد داشت بنا بر اين استفاده از تريبراك و سه پايه اورجينال به كيفيت كار شما خواهد افزود. وقتي كه دستگاه سوئيسي استفاده ميكنيد حتماً از تريبراك و سه پايه اورجينال همون شركت كه در كشور هاي ديگه اسمبل ميشه استفاده كنيد. استفاده از لوازم جانبي فيك مثل اين ميمونه ماشين پورش رو با رينگ پرايد استفاده كنيد
میزان کارایی ، دوام و دقت تجهیزات مهندسی نقشه برداری بستگی به نحوه نگهداری آن دارد.از آنجایی که در اکثر مواقع تجهیزات ما در پروژه های اجرایی در محیطی غبار آلود و شرایط نامساعدی قرار میگیرد بلطبع این شرایط روی دستگاه های ما تاثیر گذاشته و باعث افت کارآیی و ایجاد خطا در عملکرد آن می شود.در نظر داشته باشیم تجهیزاتی که ما در نقشه برداری زمینی با آن سر و کار داریم عمدتا ترکیبی از قطعات مکانیکی و الکتریکی می باشند و با ایجاد خلل در هرکدام از این قطعات قطعا” دچار افت در عملکرد و ایجاد خطاهایی همچون خطای Tilt axis ، خروج لیزر پوینتر از محور تار رتیکول ، سفتی و یا از کار افتادن رینگ فوکوس ، سفتی کف و… می شود.
تست کارگاهی كاليبراسيون توتال استیشن

یک فاصله 20 متری را دقیق متر کشی کنید این فاصله را با منشور روند استاندارد که با ژالون گیر مهار شده محاسبه کنید خطا باید زیر 3 میلیمتر باشد. توتال را تراز نمایید لمپ افق را 180 درجه بچرخانید دستگاه باید تراز بماند(به شرط سلامت ترابراک و سه پایه) و شاقول لیزری هم نباید جابجایی داشته باشد.
منشور روند, در فاصله حدوداً 100 متر به طوری که زاویه ورتیکال حدود 100 گراد باشد را قراول روی کنید و ارتفاع را یاد داشت کنید، لمپ افق را 180 بچرخانید و همین طور لمپ قائم را هم 180 درجه تا دوباره همان نقطه را قراول روی کنید، و ارتفاع را قرائت کنید دو ارتفاع نباید اختلاف داشته باشند. همین عملیات را با یک رفلکتور شیت که حدوداً در فاصله 50 متری قرار دارد تکرار کنید(زاویه مناسب با رفلکتور داشته باشید)،مختصات ها نباید اختلافی داشته باشند.
یک رفلکتور شیت با فاصله ۵۰ متر از توتال استیشن نصب کنید،تار رتیکول را روی رفلکتور قرار دهید،و زاویه ورتیکال را قرائت کنید،سپس لمپ را ۱۸۰ درجه بچرخانید و تلسکوپ را برگردانید ،سپس مجدد رفلکتور شیت را قرائت کنید،جمع دو قرائتی اگر به عدد ۳۶۰ رسید،صحت کارکرد دستگاه مورد تایید است.
اگر به جمع دو زاویه ۳۶۰ نشد،اختلاف را یادداشت کنید،اگر دقت زاویه ای توتال استیشن شما دو ثانیه است،با توجه به استهلاک دستگاه،اختلاف شما با ۳۶۰ باید حدودا ۳ ثانیه باشد؛ اگر در همین حد اختلاف باشد دستگاه در حالت کالیبراسیون محور قائم دارای کارکرد مناسبی می باشد،ولی اگر بیشتر از این میزان باشد دستگاه نیاز به کالیبراسیون دارد زیرا زاویه قائم اثر مستقیم روی ارتفاع دارد.همین عملیات را برای زاویه افق نیز دنبال کنید.
در منوي دوربین قسمت edmکه وارد میشویم در قسمت atmos همیشه ارتفاع از آبهای آزاد و دما را وارد کنید که ppm را اتوماتیک محاسبه کرده و طول دقیق در پروژه اعمال شود و در صفحه بعد atmosکنار اسکیل فکتور گزینهppmقرار دارد که این باید عددصفر باشد مگر در کارهای ژئودزی وکارهایی که خود کارفرما ppm را اعلام و شما در این قسمت وارد میکنیداگر در این قسمت ppm را خودسرانه وارد کنید به نسبت طول باعث میشود که طول واقعی ثبت نگردد و با مشكل روبرو شوید مثلا درطول ۲۸۰ متر با خطایی در حدود بيشتر از يك سانت مواجه خواهيد شد پس این قسمت همیشه معمولا بايد صفر باشد.
تنظیم آسان Atmospheric Data توتال استیشن

همانطور که میدانید این قسمت از EDM جهت تصحیح میلیمتری طول بکار میرود و برای کارهای با دقت مورد استفاده قرار می گیرد. در دوربینهای لایکا اگر شما ارتفاع و دما را وارد کنید. مقدار فشار و ppm رو خود به خود میدهد و نیاز به هیچ دستکاری نیست اما در دوربینهای نیکون فشار را نیز باید وارد کنید.
جهت اطلاع و تغییرات فشار بر حسب ارتفاع به اين روش عمل كنيد:
در شرایط ایده آل فشار ستون هوا ارتفاع صفر (سطح دریای آزاد) با دمای ایده آل 12درجه سانتیگراد برابر با 1013 هکتو پاسکال بر سانتی متر مربع است و ppm=0 است. به ازای افزایش ارتفاع از مقدار فشار کم می شود و با افزایش دما و ارتفاع به مقدار PPM اضافه می شود ابتدا تنظیمات فشار را به هکتو پاسکال تغییر دهید.
این مقادیر با توجه به منوی دوربین لایکا برداشت شده است که با استانداردهای جهانی هوا شناسی تفاوت چندانی ندارد. از 0 تا ارتفاع 900 متر به ازای هر 100 متر ارتفاع 12واحد از فشار کم می شود یعنی در ارتفاع 1000 فشار می شود.
1013-(9*12)=903 از ارتفاع 900 تا 1400 به ازای هر 100 متر ارتفاع 11 واحد کم می شود مثلا در ارتفاع 1400 فشار برابر است با
850 و از ارتفاع 1400 تا ارتفاع 2400 به ازای هر 100 متر ارتفاع 10 واحد از فشار کسر می گردد مثلا در ارتفاع فشار 750 هکتو پاسکال است. از ارتفاع 2400 تا 3400 به ازای هر 100 متر ارتفاع 9 واحد از فشار کم می شود.به طور مثال در ارتفاع 3400 فشار هوا 661 واحد می باشد.
محدوده دمای قابل قبول -30 تا 60 درجه است. محدوده فشار قابل قبول 560 تا 1066 هکتو پاسکال .البته برخی سیستمهای جهانی دمای ایده آل را 20 و برخی 0 گرفته اند.
روش تشخيص سلامت ليزر توتال استيشن

در هنگام برداشت اگر باتری پر باشد نباید باتری مقداری خالی شود این نشانه اینست که باتری خراب یا در حال خراب شدن است و به edm آسیب میزند.

چك كردن كارگاهي دقت دوربين نقشه برداري

دوربين نیوو:
2 نقطه به فاصله 50 متر روی زمین میخ کوبی کنيد
نیوو رو بذاريد تو فاصله 25 متری و اختلاف ارتفاع دو نقطه رو به دست بیاريد
نیوو رو بذاريد تو فاصله 5 متری و اختلاف ارتفاع رو دوباره محاسبه کن. باید هردو یکی باشه اگه نبود باید دوربین کالیبره
دوربين توتال استيشن:
یه فاصله 20 متری رو دقیق متر کشی كنيد این فاصله رو با منشور روند استاندارد که با سه پایه مهار شده محاسبه کنین خطا باید زیر 3 میلیمتر باشه. توتال رو تراز کنین لمپ افق رو 180 درجه بچر خونین دستگاه باید تراز بمونه و لیزر شاقول هم نباید جابجایی داشته باشه.
منشور روند, تو فاصله حدوداً 100 متر به طوری که زاویه ورتیکال حدود 100 گراد باشه رو قراول کنین و ارتفاع رو یاد داشت کنین. لمپ افق رو 180 بچر خونین و همین طور لمپ قائم رو هم 180 درجه تا دوباره همون نقطه رو قراول کنین. و ارتفاع رو بخونین. دو ارتفاع نباید اختلاف داشته باشه.
همین کار رو با یه رفلکتور شیت که حدوداً تو فاصله 50 متری قرار داره و به اون عمود هستید تکرار کنید. مختصات ها نباید اختلافی داشته باشه چك كردن سالم بودن ترابراك هم اهميت ويژه داره، همچنين كاليبره بودن ژالون و منشور ،چك كردن شاقول ليزري دستگاه كه بعد از چرخش نبايد خروج از محور داشته باشه.
چك كردن ميزان خطاي زوايا در قسمت adjust توتال استیشن

راجع به عدم تراز توتال استيشن و چك كردن صحت تراز و كاليبره بودن توتال استيشن دستگاه رو روي يك نقطه مارك شده با ضخامت كم سانتراژ كنيد و دستگاه رو تراز كنيد ابتدا از محكم بودن پيچ هاي سه پايه اطمينان حاصل كنيد.
حال دستگاه رو ١٨٠ درجه بچرخونيد و ليزر روي نقطه رو چك كنيد سپس ٣٦٠ درجه بچرخونيد اگر دستگاه از محور خارج شد دستگاه نياز به كاليبراسيون دارد. اگر از محور خارج نشد مجدد دستگاه رو از سه پايه جدا كنيد و تريبراك رو باز و بسته كنيد،مراحل رو دوباره انجام بديد
اگر مجدد تراز اعمال نشد احتمالا ايراد از تريبراك و يا سه پايه ميباشد لطفاً از تريبراك اورجينال استفاده كنيد جهت حصول دقت بالا در كار همچين پايين اومدن زمان كاليبراسيون و سلامت دستگاه به مرور زمان.
در دوربین های نقشه برداري موضوعی است که در اثر تکان های شدید دستگاه در حین حمل و نقل رخ می دهد و یکی از دلایل عدم کالیبره بودن دستگاه ها است. اساسا عدم انطباق محور دیدگانی با محور سیستم طولیاب لیزری دستگاه در فواصل بلند مشکل ساز است زیرا با افزایش طول بین این دو محور اختلاف بین نقطه اندازه گیری و نقطه مورد نظر اپراتور افزایش می یابد.

نکته حائز اهمیت این است که این خطا در عملیات نقشه برداری روزانه آشکار نمی شود و می باید طی دوره های چند ماهه (مثلا هر سه ماه یا هر شش ماه یک بار) کنترل شود دلیل آن هم این است که این اختلاف عدم تطابق، یک شیفت ثابت است که در هنگام توجیه دوربین برای تمامی ایستگاه های یکسان در نظر گرفته می شود و از این رو دوربین با دقت مطلوب توجیه می گردد.
البته شرایطی هم وجود دارد که این عدم انطباق در هنگام توجیه دوربین آشکار شود. به عنوان مثال در هنگام توجیه به روش ترفیع (resection) اگر فواصل ایستگاه ها به یک اندازه نباشد یعنی یک ایستگاه از دوربین 300 متر و ایستگاه دیگری از دوربین 20 متر فاصله داشته باشد این خطا در هنگام توجیه آشکار می شود.
راهکار تشخیص :
ابتدا دوربین را در نقطه ای به عنوان مثال نقطه A مستقر کنید و تراز نمایید. سپس در فاصله 50 متری (هر چه بیشتر بهتر، اما جهت جلو گیری از پخش شدگی لیزر بیشتر از 100 متر نشود) روی یک دیوار علامتی را مشخص کنید. (بهترین گزینه پرینت یک سیبل روی یک کاغذ سفید است) علت عدم استفاده از Tape سختی تشخیص Laser Pointer بر روی Tape است).
حال با دوربین به دقت به مرکز علامت نشانه روی کنید و Laser pointer دوربین را روشن نمایید، حال به سراغ علامت رفته تا وضعیت را برسی کنید. مرکز لیزر را علامت بزنید سپس بار دیگر نشانه روی را در حالت دایره به راست تکرار کنید و دوباره مرکز Laser pointer را علامت بزنید.
این دو علامت نسبت به علامت مرکز سیبل حالت قرینه دارند و هر چه فاصله شان نسبت به هم بیشتر باشد انحراف محور دیدگانی با محور طولیاب لیزی دوربین بیشتر است. شرایط ایده آل این است که دو علامت با مرکز سیبل هر سه در یک نقطه باشند. در این صورت دوربین از لحاظ انطباق محور دیدگانی با EDM کالیبره می باشد. در صورت عدم کالیبره بودن دستگاه، آن را به مراکز کالیبراسیون معتبر ارسال نمایید.
نكات مهم در قرائت توسط ليزر توتال استيشن

١- تنظيم دما و فشار در توتال استيشن ، همچنين خو گرفتن توتال با دماي جديد كه در پايين روش اين كار اشاره شده
٢- كاليبراسيون دقيق و تشخيص هم محوري ليزر EDM
٣- قرائت نقاط داراي طيف رنگ روشن و تست ليزر توسط قرائت سطوح رنگي(قرمز.آبي.سبز. زرد و رنگ سفيد ) در فواصل مشخص
4-سطوح تيره را قرائت نكنيد
5-استفاده از آفتاب گير تلسكوب و برخي موارد استفاده از چتر( مناطق داراي نور زياد)
6- قرائت بالاترين نقطه از سطح مورد نظر
جهت جلوگيري از انكسار نور امواج الكترومغنايسي( نور ليزر) EDM توسط قراول روي فرستاده ميشود سپس توسط بازتابنده به دستگاه برميگردد واحد كنترل دستگاه پس از دريافت موج برگشتي به روش اختلاف فاز(شمردن طول موجهاي كامل و باقي مانده فاصله بين دو نقطه محاسبه ميشود عمده خطاي EDM خطاي انكسار محيط و خود دستگاه ميباشد خطاي محيط توسط كنترل ميزان نور ورودي به تلسكوب و تنظيم دما و فشار و رطوبت كاهش ميابد.
7- دقت EDM از دو بخش تشكيل شده
نويز يا دقت دستگاه- اثر محيط يا انكسار كه بر حسب ميليمتر در كيلومتر محاسبه ميشود و براي طوليابي 5ppm ميباشد كه براي هر طول 5mm خطاي ثابت و 5mm خطا به ازاي هر كيلومتر به فرض مثال در ٣ كيلومتر ٢ سانتي متر قابل حصول است در برداشت توسط منشور
8- قرائت در شرايط جوي مناسب و نبود وزش باد
9-قرائت سطوح داراي زاويه مناسب با نورليزر توتال كه نورليزربه صورت نقطه باشد
10- فوكوس چشمي توتال و قرائت دقيق نقطه
با رعايت شرايط فوق طول مناسبي رو نسبت به برد ليزر دستگاه قرائت خواهيد كرد زيرا برد ليزر درج شده دستگاه در شرايط آزمايشگاهي مناسب درج شده.
کاربرد لیزر در دوربین های نقشه برداری :

با گذشت زمان این وسیله ( لیزر ) جای خود را در توتال استیشن ها بیشتر و بیشتر باز کرد و دلیل آن دقت و سرعت بالاتر میباشد توتال استیشن های مجهز به لیزر روز به روز در بین نقشه برداران طرفداران بیشتری پیدا میکند . برای یک نقشه بردار دقت و سرعت از اهمیت بسیار بالایی برخوردار بوده زیرا سرعت بالا باعث کاهش زمان عملیات و در نتیجه کاهش چشم گیر هزینه ها میشود و تلفیق لیزر و توتال استیشن این خواسته نقشه برداران را به خوبی پاسخ میدهد.
اولین کاربرد لیزر در توتال استیشن برای اندازه گیری فاصله بود که انقلابی در صنعت نقشه برداری به جهت سهولت کار و سرعت و دقت بالا تر برپا کرد. در ساختمان این نوع دستگاه ها از نور مادون قرمز یا نور مرئی ( از جمله نور لیزر ) استفاده میشود.
اولین کمپانی که چنین دستگاهی را ارائه داد ژئودیمتر بود. در این دستگاه از نور تولید شده از جیوه یا تنگستن استفاده میشود . این دستگاه بعدا با بکار گیری نورهای چند گانه لیزری تکمیل شد که آخرین پدیده این نوع ژئودیمتر AGA440 ساخت سوئد است که در آن از لیزر هلیوم – نئون استفاده میشود. در فاصله یاب های مادون قرمز که بیشتر آنهارا دیستومات می نامند امواج نوری که به وسیله واحد قراولروی دستگاه فرستاده میشود توسط یک بازتابنده که مجموعه ای از یک یا چند منشور چند وجهی است دریافت و سپس به سمت واحد قراولروی بر میگردد.
تعداد منشورهای به کار گرفته شده بستگی به فاصله بین دو ایستگاه دارد هر چه فاصله بیشتر باشد به تعداد منشور بیشتری نیاز است. واحد کنترل دستگاه پس از دریافت موج برگشتی با توجه به اختلاف فاز بین دو موج ارسالی و برگشتی زمان رفت و برگشت موج را تعین و به کمک حسابگر دستگاه فاصله بین دو نقطه محاسبه میشود.
بعد از اندازه گیری فاصله با لیزر کاربرد دیگر لیزر در توتال استیشن ها در قسمت شاقول دستگاه برای شاقول کردن دستگاه و سانتراژ کردن دوربین میباشد . به این صورت دیگر نیازی نیست از چشمی شاغول اپتیکی برای سانتراژ کردن دنبال میخ کوبیده شده در ایستگاه بگردیم کافیست تا لیزر را روشن کرده با تنظیم کردن آلیداد و سه پایه نور لیزر را در مرکز میخ ایستگاه قرار گیرد تا دوربین به سانتراژ شود . این روش باعت افزایش سرعت سانتراژ و افزایش دقت آن شده است .
کاربرد دیگر لیزر در توتال استیشن ها لاین دادن و پیاده کردن نقاط میباشد. قبلا برای پیاده کردن یک نقطه باید با دست چپ و راست به کارگر لاین دهیم تا به نقطه قراولروی مورد نظر برسد که این کار با مشکلات زیادی همراه است که دور بودن فاصله این مشکلات را تشدید میکند . از مهمترین مشکلات آن ، زمان زیادی است که برای پیاده کردن نقاط مخصوصا در فاصله نسبتا دورتر ( 200 متر به بالا ) صرف میشود. مشکل دیگر آن توجیه کارگر میباشد تا برای پیاده کردن نفطه به دقت مورد نظر دست پیدا کنیم . اما این مشکل نیز با لیزر تا حد بسیار زیادی برطرف شد با قرار دادن لیزر مرئی که معمولا به رنگ قرمز میباشد در محور دیدگانی دوربین به راحتی میتوان نقطه مورد نظر را پیاده کرد برای این کا کافیست به نقطه مورد نظر نشانه روی کنیم و لیزر راهنما را روشن نماییم تا کارگر به سادگی نقطه را پیدا کند.
روشهای افزایش عمر باتریهای لیتیوم-یونی

باتریهای لیتیوم-یونی مثل باتریهای مبتنی بر نیکل در گذر زمان به سرعت ظرفیت مفید خود را از دست نمیدهند و معمولاً اگر از آنها به درستی استفاده کنید، چند سالی عمر میکنند.
پس از 250 بار شارژ، ظرفیت باتریها حدود 20 درصد کاهش مییابد. اما نکتهی مهم این است که با استفادهی درست، شیب نزولی ظرفیت باتری را میتوان کم کرد و عمر آن را افزایش داد. استفادهی نادرست سرعت کم شدن ظرفیت باتری را بیشتر میکند و باید زودتر آن را تعویض کرد، البته اگر باتری وسیلهی شما به راحتی تعویض شود.
اجازه ندهید شارژ باتری صفر شود به جای اینکه صبر کنید باتری شما کاملاً دشارژ شود، کمی عجله کنید و زودتر آن را شارژ نمایید، اما علت چیست؟
تعداد سیکلهای دشارژ برای حالتهای مختلف دشارژ متفاوت است. مثلاً اگر باتری را 100 درصد خالی کنید، بین 300 تا 500 بار میتوان از آن استفاده کرد. اگر تنها 10 درصد آن خالی شود هم میتوان به 3750 تا 4700 بار سیکل شارژ و دشارژ امیدوار بود. اگر عجله کنید ممکن است به این نتیجه برسید که 10 درصد خالی کردن باتری بهترین کار است، اما این نتیجهگیری درست نیست چرا که تنها از 10 درصد باتری استفاده کردهاید.
در حقیقت بهترین حالت ، حالتی است که حاصلضرب تعداد دفعات شارژ در درصدی از ظرفیت که استفاده شده، حداکثر باشد. مثلاً با دشارژ 25 درصدی در تمام عمر باتری از ظرفیتی معادل 2000 ضربدر 25 درصد ظرفیت یا به عبارتی 500 برابر ظرفیت باتری استفاده میشود.
در مورد دشارژ 50 درصدی حداقل از 600 برابر ظرفیت باتری استفاده میشود که رقم بسیار خوبی است. اگر باتری کاملاً پر و خالی شود، در تمام عمر مفید آن تنها میتوان از ظرفیت معادلی در حدود 300 برابر ظرفیت اصلی باتری استفاده کرد که رقمی بسیار پایین است. لذا سعی کنید وسایل خود را قبل از اینکه شارژشان به کمتر از 40 یا 50 درصد برسد، شارژ کنید.
اما سوال دوم، تا چند درصد شارژ کنیم؟ 100 درصد یا کمتر؟
باتری لیتیوم-یونی را کامل شارژ نکنید
همانطور که در بخش قبلی بررسی شد، اگر تنها 10 درصد شارژ باتری تمام شده باشد و آن را شارژ کنیم، عمر آن بهینه نخواهد بود. بهترین کار در هنگام شارژ این است که نگذاریم شارژ باتری به بیش از 80 یا نهایتاً 90 درصد برسد و زودتر شارژر یا وسیلهی همراه را از برق جدا کنیم.
نتیجهگیری کلی این است که:
زمانی که شارژ باتری بین 40 تا 80 درصد در نوسان باشد، عمر آن حداکثر خواهد بود.
هر ماه یک بار شارژ باتری را صفر کرده و سپس کاملاً شارژ نمایید
خالی کردن شارژ به طور کامل از نظر کارکرد و عمر مفید درست نیست، اما بهتر است هر ماه یک بار این کار را انجام دهید. بیشتر باتریهای پیشرفتهی امروزی یک ویژگی مهم دارند و آن تخمین مدت زمانی و شارژ باقیمانده است.
به این باتریها اصطلاحاً باتری هوشمند گفته میشود. برای تخمین درست باید باتری کالیبره باشد و اگر همیشه آن را تا نیمه مصرف کنید و مجدداً شارژ نمایید، از حالت كاليبره خارج میشود و در محاسبه دچار خطا میشود. لذا هر ماه یک بار این کار را انجام دهید تا باتری به حالت کالیبره نزدیک شود.
چک کردن دقت استقرار توتال استيشن

زمانیکه قصد این را دارید که روی ایستگاه مختصات داری مستقر شده و دوربین خود را به ایستگاه مختصات دار دیگری توجیح کنید و یا به اصلاح به نقطه دیگری ببندید،شاید این سوال برای شما پیش آید که دقت کار شما یا دقت بسته شدن این طول چقدر است؟؟؟
در این دقت میتواند عواملی چون نحوه استقرار و تراز بودن دوربین ، تراز رفلکتور ، دقت محاسبه مختصات ایستگاه و … تاثیر داشته باشد .
حال نحوه به دست آوردن دقت استقرار و بستن دوربین:
پس از مشخص کردن ایستگاه استقرار و ایستگاه توجیح دوربین ، دستگاه از شما می خواهد که ایستگاه توجیح را برداشت کنید با استفاده از دکمه All . کافیست قبل از زدن این دکمه دکمه Dist را زده سپس Page دوربین را زده و در صفحه بعد اعداد مربوط به دقت استقرار خود را مشاهده کنید. دو خط آخر میزان خطای زاویه و خطای طول مشاهده شده نمایش داده می شود.
روش صحیح استقرار سه پایه

اگر روی زمین دایره ای فرضی داشته باشیم محور سه پایه که برابر با محور دوربین نیز هست در وسط این دایره قرارگیرد پایه ها بایستی دایره را به سه قسمت مساوی تقسیم کند (60 درجه)
ارتفاع سه پایه با استقراردوربین نیز باید مناسب با قد شما باشد. ابتدا سعی کنید پایه ها را قبل از سوار نمودن دوربین روی زمین محکم کنید به طوری که سه پایه نسبتا تراز باشد آنگاه دوربین را درحالی که پیج های ترابراگ در حالت وسط تنظیم شده(یعنی یک پیچ زیاد باز نباشد و پیچ دیگر زیاد بسته) بر سه پایه سوار نمایید .
حال تراز نمودن دوربین درحالت فری استیشن (استقرار دوربین خارج از ایستگاه) از پیچ های ترابراگ استفاده کنید،اگر اینکار را چندین بار تکرار کنید دیگر میزان ارتفاع سه پایه دستتان می آید. هرگاه بعد از سوار نمودن دوربین خواستید سه پایه ها را در زمین محکم کنید ابتدا پبچ سه پایه را کاملا شل نمایید آنگاه اقدام به فشردن پدال سه پایه نمایید تا به دوربین ضربه وارد نشود
اگر زمین بر اثر سرما یخ زده باشد به مرور یخ زیر پایه آب خواهد شد و باعث خارج شدن دوربین از تراز خواهد شد. اگر در یخبندان زیاد از دوربین استفاده میکنید بهتر است زیر هر پایه صفحه فلزی بگذارید بطوری که روی صفحه برای درگیری پایه یک مهره جوش دهید و زیر صفحه چند سیخ خیلی کوتاه جوش دهید
همیشه قبل از تراز نمودن دوربین برای مدت کوتاهی صبرکنید تا دمای سه پایه و دوربین با دمای محیط برابر شود آنگاه اقدام به تراز دوربین نمایید. پیچ های سه پایه باید قدری محکم باشد که سه پایه با فشار کمی از هم باز شود شل بودن باعث خارج شدن از تراز خواهد شد.
در هنگام باد شدید سه پایه را کوتاه تر گذاشته و پایه پشت مخالف جهت باد قرار گیرد. با سنگ لاشه نیز می توان اطراف پایه ها را پوشاند.
کنترل شاقولی و پیچیدگی ستون های استراکچر فلزی :

-با توجه به ارتفاع ستون و در فواصل مورد نیاز ارتفاعی،قبل از استقرار ستون، خط آکس ستون رو در دو بر ستون مشخص کنید(پیشنهاد میشه برای گریز از شیطنت پیمانکاران از لاکی که مقاومت خوبی در برابر پاک شدن داره استفاده بشه)
برای کنترل دوربین رو مستقر کرده و تار عمودی رو بر روی خط پای ستون قرار داده و با حرکت تلسکوپ در راستای ارتفاعی شاقولی ستون رو چک میکنیم. برای اینکه بتونیم مقدار ناشاقولی رو به طور دقیق به دست بیاریم ،می تونیم دو طرف خط آکس با خط کش مدرج کنیم.
توجه شود که در این روش دو بار باید دوربین رو مستقر کرده و شاقولی رو در دو راستا حتماً چک کنیم.
برای کنترل با این روش میتونیم تار عمودی رتیکول رو روی لبه ی ستون نیز بندازیم که با توجه به برش و جوشکاری ستونها عاری از خطا نخواهد بود.
-با استفاده از دوربین توتال استیشن و شیت منشور،در این روش شیت های منشور را در فواصل ارتفاعی مورد نیاز روی ستون چسبونده و با قرائت مختصات پای ستون و هر کدام از منشورها ،میزان ناشاقولی درتراز ارتفاعی مورد نظر به دست میاد.
در این روش با توجه به کار مختصاتی نیازی به استقرار دوباره ی دوربین برای قرائت طرف دوم نیست.
اگر در هر تراز به جای یک منشور از دو منشور در یک خط استفاده کنیم ،با قرائت دو منشور می توانیم شکل ستون رو ترسیم کرده و پیچیدگی ستون رو نیز به دست بیاریم.
اگه دوربین توتال لیزری در اختیار دارید ،بدون تحمل مشقتهای ذکر شده میتونید به راحتی و با قرائت مختصات پای ستون و تراز مورد نظر و مقایسه ی قرائتها مقدار ناشاقولی و احیاناً پیچیدگی رو به دست بیاورید
کنترل شاقولی و پیچیدگی ستون های استراکچر بتنی :

-برای رسیدن به کمترین خطا در کنترل شاقولی، بهترین روش استفاده از لیزره. برای این کار باید مطمئن شوید که در فاصله ی مناسب از سازه و عمود بر محور آن ایستاده اید. همچنین باید توجه کنید که هنگامیکه تلسکوپ را از پایین سازه به بالا حرکت می دهید تا نقطه ی دوم را دیست کنید، دوربین دوران افقی نداشته باشد و زاویه افق تغییر نکند.
روش دوم که معمولتره؛ استفاده از تارهای دوربینه. برای این کار حتماً در فاصله ی مناسب از سازه و “عمود بر محور” آن بایستید. و در پایان کار میتوانید ناشاقولی سازه را با متر اندازه گیری کنید.در دو روش فوق لازم است دو بار در امتداد دو جهت دوربین گذاشته شود و عملیات قرائت انجام گیرد.
-روش سوم روش ترکیبی است و برای هر ستون یک بار ایستگاه گذاری کافی است. برای این کار دوربین را در فاصله ی مناسب و عمود بر محور سازه مستقر می کنیم. با استفاده از لیزر، شاقولی جهت مستقیم (180-0) و با استفاده از تار، شاقولی جهت دوم (270-90) بررسی می شود.
توجه کنید که اگر ستون یا سازه دارای لبه نبود (سازه های با مقطع دایره وار) و علائم مشخص کننده روی سازه وجود نداشت، امکان شاقول کردن دقیق آن به هیچ روشی وجود ندارد.
تبدیل مختصات Local – UTM

حالت اول:اگر نقاط شما محلی یا لوکال است و بخواهید به UTM تبدیل کنید در صورتی که طول و عرض نقاط برداشتی شما کمتر از 200 متر باشد و دو نقطه از نقاط برداشتی شما UTM آنها مشخص باشد می توانید با دستور ALIGN اتوکد یا سیویل اینکار را انجام دهید اما اگر نقاط شما پراکنده باشد باید از نرم افزار مربوطه استفاده نمایید
حالت دوم:
اگر نقاط برداشتی شما محلی است و می خواهید به محلی دیگری تبدیل نمایید هر چقدر هم پراکنده باشند با دستور AL اتوکد انجام می شود
دستور ALIGN:
این دستور هم زمان اجرای دو دستور MOVE و ROTATE را انجام می دهد
فرض کنید یک پاره خط به صورت افقی دارید و میخواهید هم جا بجا شود و هم چرخش پیدا کند ابتدا پاره خط را انتخاب کنید و سپس دستور AL را در کامند سیویل یا اتو کد تایپ و اینتر نمایید حال روی یک سر از پاره خط کلیک نماید و کلیک دوم را در محلی که قصد دارید انتقال شود را انجام دهید برای کلیک سوم به سر دیگر پاره خط برگردید وکلیک چهارم را در مقصد مورد نظر انجام دهید
در این حال سوالی مبنی بر اینکه مقیاس را تغییر دهد یا نه می پرسد بر حسب نیاز Yes یا NO را بزنید بدین ترتیب پاره خط شما جابجا شد و چرخش لازم را پیدا کرد.
این کار را برای نقاط هم می توان انجام داد یکی از کاربردهای جالب این دستور این است که اگر قرار است شما یک نقشه و سایت محدود را پیاده کنید کافیست پس از استقرار دوربین چهار گوشه از سایت را برداشت کنید و همزمان 2 یا چند نقطه جهت ایستگاه نیز مشخص و با دقت برداشت نمایید.
حال نقاط را در سیویل بریزید و هرطور که مایلید با دستور AL جابجا و چرخش دهید. بهتر است یک وجه از چهار گوش با محور افق یا عمودی سیویل موازی گردد تا انجام ترسیمات روی نقشه راحت تر امکان پذیر باشد
البته به این نکته توجه داشته باشید باید نقاط ایستگاهی را نیز در این چرخش و جابجایی شبیه دیگر نقاط شرکت دهید سپس مختصات جدید آنها را استخراج و به دوربین بدهید.
با دو نقطه ثابت جهت توجیه روش resection مناسب است یا روش cordinate

روش Resection زمانی استفاده می شود که شما قصد استقرار روی نقاط موجود خود را نداشته و بواقع قصد دارید روی ایستگاهی با مختصات مجهول استقرار داشته باشید و دقت این روش نیز بسته به دقت نقاطی دارد که شما می خواهید به آنها قراولروی کرده و مختصات نقطه جدید را بدست آوربد که این دقت نیز در دستگاه توتال استیشن شما قابل رویت است.
و اما اینکه از کدام روش استفاده کنید بسته به نوع کار و این است که شما بواسطه موقعیتتوت مجاب هستید که روی نقطه ای غیر از نقاط موجود مستقر شوید یا نه. و بنده نیز پیشنهاد میکنم تا در حد امکان از روش Resection برای اطمینان بیشتر با قراولروی به دو نقطه استفاده نکنید و از نقاط بیشتری استفاده کنید.
محاسبه مختصات نقطه مجهول با کمک ترفیع (Resection) روشهای بسیار متنوعی دارد و نتیجه کار بستگی مستقیم به تعداد داده های مشاهده شده دارد، مثلا با کمک سه زاویه یا به عبارت عملیاتی، فقط قراولروی و REC میتوان مختصات نقطه مجهول را محاسبه کرد، بدیهی است اگر در همین حالت علاوه بر مشاهدات زاویه ای ، مشاهدات فواصل (All (Angle&Dist را نیز اضافه کنیم دقت محاسبات بسیار بالاتر میرود.
اما از طرفي روش ترفيع براي حالتي بکار ميرود که دسترسي اپراتور براي اندازه گيري فاصله بين استگاه ها ندارد که در اين روش حداقل 3 ايستگاه براي محاسبات لازم است، حداکثر ايستگاه ها بسته به مدل دوربين و نرم افزار نصب شده در آن متغيير است.
اما در مورد سوال شما: بین دو روشی که گفتید عملا فرقی نمیکنه، به شرطی که در Resection یا همان ترفیع تمامی اطلاعات برداشت شوند یعنی هم طول و هم زاویه. در حالی که حداقل های مشاهدات برای ترفیع با کمک دو ايستگاه: دو زاویه و یک طول هستند.
پس از محاسبه (فشردن دگمه compute) در منوی بعدی دگمه RESID را فشار دهید تا از دقت محاسبات خود اطمینان حاصل کنید. RESID یا باقیمانده عبارت است از مقدار قرائت شده منهای مقدار محاسبه شده که بايد مقادير صفر (ايده آل) و يا بسيار نزديک به صفر باشند.
استفاده از ترفیع برای توجیه از نظر من بهترین روش است به شرطی که از ابزارهای مناسب این روش هم استفاده شود، اگر از دستورالعمل های زیر استفاده کنید بهترین نتایج را خواهید گرفت. انتخاب محل ایستگاه های بر روی ارتفاعات ثابت مثلا دیوار، تیر برق مستحکم و …علامتگذاری نقطه ایستگاه به ظریفترین روش ممکن، مانند علامتگذاری با کمک نوک ظریف یک ماژیک ضد آب که میتواند حتی در شرایط بد تا چندین ماه دوام داشته باشد.
یا سمبه زدن با یک سمبه بسیار نوک تیز مخصوصا بر روی محل های فولادی، که دوام این روش بسیار زیاد است.استفاده از رفلکتور مناسب که بهترین رفلکتور پس از مراحل 1 و 2 یقینا یک TAPE استاندارد هست. TAPE باید مورد تاپید کمپانی تولید کننده توتال استیشن بوده و تنظیمات آن در دستگاه تعبیه شده باشد.
ضخامت آن بسیار کم و از انواع تقلبی!! نباشد.انتخاب محل نقطه ترفیع مجهول به نحوی که همواره زوایای ایجاد شده مابین محل استقرار دوربین و ایستگاه ها زوایای بسیار حاده و یا بسیار منفرجه نشود. ایده آلترین حالت این است که مابین محل استقرار و دو ایستگاه یک مثلث متساوی الاضلاع شکل گیرد.در پروژه های ساختمانی و کارگاهی که موانع متعددي همواره گریبان گبر اپراتور خواهد شد بهترین روش استفاده از ترفیع است.
اگر ابزارها و دستور العملهای فوق به بهترین نحو بکار برده شود این روش برای کارگاه های ساختمانی بزرگ و حساس که شامل ساختمانهای بسیار بلند مرتبه هم باشند به دقت مطلوب میتوان رسید. ولي براي برداشتهاي مرسوم نقشه برداري استفاده از Resection بدليل حاده شدن بيش از حد زوايا (که در آيتم 4 توضيح داده شد) نتايج نامطلوبي خواهد داشت، مگر در موارد خاص.
یک نکته در بالا بردن دقت توجیه دوربین در فری استیشن

میدانید که هرچه فاصله ما از ایستگاه زیاد تر باشد دقت در زاویه بالاتر می رود و اما دقت در طول پایین تر. بنابراین برای بهترین استفاده از این قانون هرگاه یکی از ایستگاهای شما فاصله زیادی دارد از این روش استفاده کنید.
نحوه کار:
دوربین را به سمت ایستگاه دور نشانه روی کنید بدون زدن ALL یا Dist فقط کلید REC را بفشارید و برای ایستگاه نزدیک کلید ALL را بفشارید. بدین ترتیب دوربین شما توجیه خواهد شد و اگر دوباره پس از توجیه ایستگاه اول را بخوانید خواهید دید که مختصات آن یکی خواهد شد. اگر قادر به قراءت نقطه اول نبودید مثلا رفلکتور روی آن نبود برای جلوگیری از اشتباه و ایجاد چرخش در مختصات در این مواقع سعی کنید حداقل از سه ایستگاه استفاده کنید.
توجيه در توتال استيشن

توجیه یعنی اینکه شما جهت شمال رو به دوربین معرفي می کنید، شما نقاطی رو بر روی زمین مشخص می کنید و دوربین را در آن نقطه قرار داده و سانتراژ و تراز می کنید سپس دوربین را به طور فرضی در امتداد شمال می بندید در حقیقت این امتداد به صورت فرضی تعیین شد. در واقع ما با این عمل محور y (همان شمال فرضی) دستگاه مختصات نقاط مورد نظر یا عوارض موجود روی زمین را که می خواهیم برداشت کنیم مشخص کردیم و در نتیجه محور x که با محور y زاویه نود درجه به صورت ساعتگرد می سازد مشخص شد . در این حالت ما یک سیستم مختصات دکارتی رو روی منطقه ای که می خواهیم نقشه آن رو تهیه کنیم تعریف می کنیم. در این حالت هر نقطه در این منطقه دارای یک مختصات x , y بر اساس این سیستم مختصاتی که ما تعریف کردیم هست .
در ادامه با فرض اینکه پروژه کوچک هست و در منطقه ایستگاهی وجود ندارد. در این حالت روش کار به دو صورت مختلف قابل انجام هست که در ادامه توضیح داده خواهد شد.
روش اول: که به نام روش آنتنی معروف هست و در پروژه های کوچک معمولا استفاده میشه که از این روش در پیمایش های اصلی نباید استفاده کرد و امکان خطا نیز در این روش وجود دارد.
روش دوم: نیز به این شکل هست که پس از انتخاب نقاط مورد نظر، با استفاده از گیرنده مولتی فرکانس مختصات نقاط مذکور رو تعیین می کنید و برای توجیه دوربین از این نقاط استفاده می کنید.
فری استیشن در حالت اول:

زمانی که دوربین در فاصله کمی از نقاط شبکه قرار دارد و زاویه بین ایستگاه استقرار و نقاط شبکه بیشتر از 90 درجه میباشد .
فری استیشن در حالت دوم(ایده آل):

زمانی که دوربین در فاصله ی متناسب از نقاط شبکه قرار دارد و زاویه بین ایستگاه استقرار و نقاط شبکه 60 درجه می باشد .حالتی که یک شبکه با مثلث متوازی الاضلاع داریم.
فری استیشن در حالت سوم:

زمانی که دوربین در فاصله دور از نقاط شبکه قرار دارد و زاویه بین ایستگاه استقرار و نقاط شبکه کوچک می باشد.
پیمایش در نقشه برداری
در انجام همه کارهاي عمرانی بخصوص کارهایی که نیاز به نقشه برداري دارد ایجاد یک شبکه پیمایش مناسب از ملزومات پروژه به شمار میرود و میتوان گفت انجام بیشتر کارهاي نقشه برداري و عمرانی بدون ایجاد شبکه پیمایش سخت و در بعضی موارد غیر ممکن است.
شبکه پیمایش به این دلیل ایجاد میشود که بتوان از آن به عنوان یک شبکه مبنا یا کنترل استفاده کرد.در انجام کارهاي نقشه برداري استفاده کردن از بنچ مارك که همان نقاط شبکه پیمایش هستند از اهمیت بالایی برخوردار است و همیشه دقت انجام بیشتر پروژه هاي نقشه برداري به دقت بنچ مارك هاي موجود در منطقه بستگی دارد.
براي ایجاد شبکه پیمایش و نیز بنچ مارك زدن باید یکسري اصول را رعایت کرد تا بتوان شبکه پیمایش با دقت بالا و ماندگاري بالا احداث کرد این اصول در نشریه شماره1-119سازمان نقشه برداري کشور بیان شده است.که از جمله آن میتوان به موارد زیر اشاره کرد:
- محل ایستگاه ها باید به نحوي انتخا شود که براي مدت طولانی ماندگار باشد
- به راحتی قابل دید باشد-در مسیر رودخانه یا جاده هاي محلی احداث نشود
- در محل هایی که رفت و آمد زیاد است و امکان از بین بردن بنچ مارك وجود دارد بنچ مارك زده نشود
- در محل هایی که زمین سست است و امکان جا بجا شدن بنچ مارك وجود دارد بنچ مارك زده نشود
- از یک ایستگاه به ایستگاه قبلی و بعدي دید داشته باشیم
- سعی شود ایستگاه هاي پیمایش درمحل هاي مرتفع زده شود
- ایستگاه ها باید در محلی انتخا شوند که دسترسی به آن آسان باشد
نکات مهم در ایجاد شبکه پیمایش استاندارد:
- براي افزایش دقت قرائت زاویه می توان فواصل بین بنچ مارك ها را بیشتر در نظر گرفت
- براي قرائت زاویه هاي شبکه بهتر است از روش کوپل استفاده شود
- براي بالا بردن دقت طولیابی میتوان طول ها را به صورت رفت و برگشت اندازه گیري کرد یا از روش دقیق طولیابی استفاده کرد
- باید زاویه هاي پیمایش به نحوي انتخا شود که زیاد تند نباشند و نیز نبایدزیاد باز باشد ونیز بالعکس
- در نظر گرفتن فشار و دماي محیط و اعمال کردن آن به دوربین
- بنچ مارك ها بتنی باید به نحوي ساخته شوند که مقاوم باشند و در برابر سرمازدگی و … مقاوم باشد
- باید شبکه پیمایش به سمت شمال منطقه توجیه شده باشد
- ایستگاه هاي پیمایش به نحوي انتخا شوند که بتوان از آن به مساحت زیادي از منطقه دید داشته باشد
- براي بنچ مارك هاي موقت میتوان از میخ چوبی یا فلزي استفاده کرد.
هدف کلی ایجاد یک شبکه پیمایش در یک پروژه استفاده از آن براي پیاده کردن و برداشت نقاط استفاده میشود که در این جا به شرح برداشت نقاط میپردازیم.
برداشت
مرحله برداشت بعد از مرحله شناسایی اولین مرحله هر پروژه نقشه برداري است و دقت در این مرحله نیز از اهمیت بالایی برخوردار است.
برداشت یک نقطه براي هدف هاي مختلفی از جمله شناسایی و تحلیل یک عارضه یا محل و تهیه نقشه هاي فروان مانند نقشه توپوگرافی و…انجام میشود.
براي اینکه بخواهیم یک نقطه را در روي سطح زمین برداشت کنیم میتوان از روش هاي زیادي مانند:
استفاده مسقیم از گیرنده ماهواره ای مولتی فرکانس
استفاده از روش تاکئومتري
استفاده از دوربین هاي توتال
در بین این روش ها استفاده از گیرنده GNSS نسبت به سایر روش ها بیشتر استفاده میشود. GNSS دستگاهی است داراي دقت بالا در حد میلی متر(چند فرکانسه و سرعت بالا که باعث شده بیشتر از آن استفاده شود.در این جا به شرح روش برداشت با توتال میپردازیم.
براي اینکه بتوان یک نقطه را توسط توتال برداشت کرد باید مراحل زیر را طی کرد:
- در نظر گرفتن حداقل یک نقطه معلوم براي معرفی به دوربین
- ایجاد یک پوشه در دوربین براي ذخیره اطلاعات
- معرفی مشخصات ایستگاه استقرار به دوربین
- معرفی مشخصات نقطه توجیه یا معرفی شمال منطقه به دوربین
- ایجاد شبکه پیمایش
پس از توجیه دوربین توتال استیشنروی هر نقطه که منشور را قرار دهیم با اجرای کلید DIST علاوه بر مشخص کردن مختصات نقطه دوم کلی اطلاعات از قبیل فاصله افق و مورب دوربین تا نقطه زاویه و… را نمایش می دهد.
پس از تثبیت ایستگاه جدید با دقت تمام به ایستگاه جدید نشانه روی نمایید تار دوربین را از پایین ترین قسمت ژالن منشور که بر روی دوپایه ژالن گیر روی نقطه قرار داده و کاملا تراز نموده اید تنظیم کرده و بدون حرکت افقی دوربین تار افق تلسکوپ دوربین را به وسط منشور نشانه روی می کنیم. دقت کنید بدون حرکت افقی دوربین چون الان دوربین در پایین ترین حالت که به نقطه دید داشتیم دوربین را به ژالن بستیم پس اگر در تنظیم روی منشورحرکت افقی داشته باشیم همه زحمات ما به هدر خواهد رفت.
حال کلید DIST را بفشارید تا مختصات نقطه نمایش داده شود دوباره کوپل را هم می خوانیم منظور از کوپل قرائت با استفاده از جهت دیگر دوربین به اصطلاح دایره به چپ و دایره به راست و هر دو را یاد داشت می کنیم و میانگین می گیریم. بدین ترتیب یک ایستگاه با دقت نرمال احداث نمودیم، اما اگر بخواهیم دقت کار را بالا ببریم می باید از روش دوم یا پیماش استفاده نمود.
فواصل بین ایستگاهها بسته به دو عامل مقیاس نقشه و دشت یا تپه ماهور بودن محل از ۲۰۰ متر تا ۲۰۰۰ متر انتخاب می گردد.
مواردی که باید در پیمایش رعایت شود
- دوربین توتال استیشن کالیبره باشد
- سه پایه لقی نداشته باشد
- تراز ژالن منشور گیر صحیح عمل کند و ژالن استاندارد باشد
- برای محل ایستگاهها از قبل بازدید میدانی صورت گرفته باشد و در محل مناسب وتا حد امکان با فواصل مساوی و حداکثر فاصله 400 متر باشد
- زاویه بین ایستگاها نه حاد و نه زیاد منفرجه باشد، کمتر از 180 درجه باشد
- هر ایستگاه باید به ایستگاه قبل و بعد خود دید تا حد امکان کافی داشته باشد و منظور از دید کافی این است که بتوانید نوک میخ ایستگاه را ببینید
- نقطه ایستگاهی باید به صورت ظریف مشخص باشد یعنی اگر میلگرد است وسط میلگرد سمبه نشان شده باشد
- در هر ایستگاه باید ژالن با پایه ژالن ثابت شده باشد یعنی همزمان باید دو ژالن و دو پایه ژالن داشته باشید در صورت استفاده از یک ژالن و پایه زمان زیادی روی یک ایستگاه خواهید ماند که با خارج شدن دوربین از تراز و تغییر تابش خورشید در دقت زاویه خوانی شما تاثیر خواهد گذاشت و نتیجه را واگذار خواهید کرد .
نحوه قرائت:
نوع زاویه را به گرادی تغییر دهید دوربین را روی ایستگاه معلوم دوم مستقر نموده و به نقطه معلوم اول در پایین ترین حد ممکن ژالن صفر صفر کنید سپس به سمت نقطه مجهول سوم چرخیده و زاویه را یادداشت کنید زوایای قرائت به صورت ساعت گرد باشد
دوربین را کوپل کرده و روی ایستگاه سوم را مجددا قراءت کنید و یاد داشت نمایید به سمت نقطه اول چرخیده و زاویه را یاد داشت نمایید حال کوپل را تغییر داده و زاویه را به 50 گراد روی نقطه اول ببندید و به سمت نقطه سوم نشانه روی کرده و یادداشت کنید و سپس کوپل را تکرار کنید
برای بار سوم زاویه را 100
برای بار چهارم 150 گراد
برای بار پنجم 200 گراد
یکی از دلایل این امر این است که اگر هر مرتبه صفر صفر کنید با مقدار زاویه آشنا می شوید و بر روی قراءت های بعدی شما نا خودآگاه اثر گذار خواهد بود حال یکی از زاویه های قراءت شده که پرت تر از دیگر زوایا می باشد را حذف نمایید و مابقی را میانگین بگیرید فواصل هر ایستگاه را در حالت دایره به چپ و راست (عادی و کوپل ) بخوانید و یاد داشت کنید به طوری که برای هر دو ایستگاه 4 فاصله داشته باشید و میانگین بگیرید به یاد داشته باشید ارتفاع و دما را در اتمسفرEDM وارد کرده باشید و فاصله خوانی EDM را نیز به حالتFind (بهترین حالت دقت) قرار داده باشید
مراحل فوق را تا انتها ادامه دهید اگر تعداد ایستگاهای شما زیاد است و فواصل طولانی هر چند ایستگاه را جدا پلیگون بندی نمایید. مراحل سر شکنی را دستی یا با نرم افزارهایی مثل سیویل تری دی و یا اکسل انجام دهید برای اطمینان از حاصل کار اگر پلگون باز است تکرار و همچنین انتقال مختصات به شیوه برداشت را فراموش نکنید در اتوکد مختصات برداشتی ایستگاهها را وارد کنید و با پلی لاین به هم وصل کنید تا در انتخاب زوایای برداشتی داخلی و خارجی دچار اشتباه نشوید
حالت دوم ایجاد پیمایش:
در این روش ما از امکانات دوربین توتال استیشن فقط از فاصله یابی و قرائت زوایه استفاده می کنیم برای این منظور ابتدا نقاط ایستگاهی را از پیش ساخته و مشخص می کنیم.
دو نوع عملیات برای پیمایش لازم است
الف) عملیات صحرایی
ب) عملیات دفتری
پیمایش پلیگون بسته :پلیگون بسته یعنی از یک امتداد و نقطه معلوم شروع و به همان امتداد و نقطه معلوم باز گردیم یک چند ضلعی را در ذهن خود در نظر بگیرید پلیگون بسته نیز اینگونه هست.
پلیگون باز: پلیگون باز پلیگونی است که مثل چند ضلعی به هم وصل نیست و به اصطلاح به آن آنتنی می گویند.
دو حالت ممکن است اتفاق افتد
حالت اول: از یک امتداد معلوم شروع (وقتی می گوییم امتداد یعنی امتدادی که دارای دو نقطه معلوم یکی در ابتدا و یکی در انتها باشد) و به امتداد معلوم دیگری خاتمه یابد
حالت دوم : از یک امتداد معلوم شروع گردد و به شکل آنتی ادامه یابد و در انتها نیز به امتداد معلوم متصل نشود
شروع عملیات پیمایش
دوربین را روی نقطه دوم ایستگاه معلوم قرار می دهیم به سمت نقطه اول نشانه روی کرده و زاویه دوربین را صفر صفر می کنیم آنگاه دوربین را چرخانده در جهت عقربه های ساعت به اولین نقطه مجهول می بندیم و زاویه را یادداشت می کنیم. بگذارید برای ایستگاهها نام انتخاب کنم تا بهتر متوجه شوید
نقطه معلوم اول A نقطه معلوم دوم B نقطه اول مجهول Cو در ادامه D و E و… داشتیم می گفتیم وقتی روی ایستگاه B قرار دارید و به A صفر کردیم صفر را یادداشت می کنیم و به C می بندیم و زاویه را یاداشت و دوباره کوپل (دوستان نخوام کوپل رو هم توضیح بدم)می کنیم سپس زاویه روی C را یاداشت و به A می بندیم و یاداشت می کنیم.
این عمل را همانطور که روی نقطه B هستیم چند بار تکرار می کنیم و هر بار یادداشت می کنیم آنگاه فاصله امتداد AB که معلوم است پس هیچ ، فاصله BC را در دوحالت (کوپل و نرمال) یادداشت نمایید. به همین نحو دوربین را روی ایستگاه C مستقر نمایید و به B صفر صفر و ادامه عملیات.
توضیح کامل اندازه گیری زاویه با روش کوپل
روش کوپل:
به آن روش زوج هم گفته می شود ،در این روش یک زاویه دوبار به روش ساده یا صفر صفر اندازه گیری می شود و سپس از دو مقدار میانگین گرفته می شود. دوبار اندازه گیری،به روش ساده در حالت های دایره به چپ و دایره به راست انجام می شود. در این روش اعداد قرائت شده در جدولی یادداشت می گردد.
سه نقطه به تربیب نامهای A و B و C داریم دوربین را روی نقطه B قرار می دهیم و پس از تراز کردن دقیق روی نقطه به سمت نقطه A قراولروی نموده و کلید مجازی HZ=0 را می فشاریم (این کلید در دوربینهای سری TS لایکا در پایین صفحه منویQ-Survey قرار دارد)
سپس در جهت عقربه های ساعت به سمت نقطه C قراول روی نموده و مقدار را در جدولی یادداشت می کنیم. سپس همچنان که روی نقطه C قرار دارد تلسکوپ دوربین را به سمت مخالف چرخانده و دوربین را نیز ۱۸۰ درجه می چرخانیم تا دوباره چشمی دوربین مقابل چشم ما قرار بگیرد این بار نیز نقطه C را می خوانیم و یادداشت می نماییم و در همین حالت به سمت نقطه A چرخیده و مجدد نقطه A را قرائت و یادادشت می کنیم.
تا این مرحله حاصل قرائت یک کوپل می شود این عمل را تا ۵ بار تکرار نمایید. هر کوپل را میانگین گرفته و یادداشت کنید و انگاه یکی از ۵ بار را که مقدار زاویه تفاوت بیشتری با دیگر زوایا دارد را حذف نمایید و از ۴ زاویه مانده مجدد میانگین بگیرید.
توضیح بیشتر در مورد روش کوپل:
برای خواندن یک زاویه با دوربین باید دوربین روی راس زاویه مستقر بشه پس اگر سه تا ایستگاه داشته باشید با نام های A ,B,C ایستگاه وسط B دوربین است به ایستگاه A زاویه افق را صفر صفر کنید.
دوربین را حرکت دهید به ایستگاه C نشانه روی کنید و زاویه را یاداشت کنید حال در همان وضعیت که روی نقطه C نشانه روی کردید تلسکوپ را بچرخانید تا طرف دیگرش مقابل شما قرار گیرد حالا دوربین را بچرخانید تا چشمی بیاد مقابل شما دوباره دقیق به نقطه C نشانه روی کنید و زاویه را یادداشت کنید.
در همان حالت برگردید به نقطه A و مقدار زاویه در نقطه A رو هم یاداشت فرمایید پس تا اینجا یک کوپل انجام دادید زاویه بار اول که صفرصفر شده معلوم است و زاویه کوپل رو هم از هم کم کنید و اگر از 360 درجه یا 400 گراد رد شده باشد باهاش جمع کنید.
محاسبه حداکثر خطای مجاز بست زاویه ای و بست مسطحاتی
بهتر است اضلاع پیمایش کمتر از 100 متر و بیشتر از 300 متر نباشد
حداکثر خطای مجاز بست زاویه ای از رابطه زیر به دست می آید …
E max=+- 2.5 dα √(N/m)
dα = دقت زاویه ای دوربین بر حسب ثانیه
N = تعداد زوایای پیمایش
M = تعداد قرائت های کوپل زاویه
برای محاسبه حداکثر خطای مجاز بست مسطحاتی
E max = +- 2.5 AB dα √( N/2)
dα = دقت زاویه ای دوربین
AB = بزرگترین قطر پیمایش
AB = 1/4 × (طول کل پیمایش) × ( 2رادیکال )
N = تعداد اضلاع پیمایش
البته در پیمایش اتصالی حداکثر خطای مجاز بست مسطحاتی به صورت زیر محاسبه می گردد.
E max = 2.5 L dα √( N/3)
L = مجموع طولهای پیمایش
N = تعداد اضلاع پیمایش
dα = دقت زاویه ای دوربین
انواع پيمايش
1- پيمايش باز : پيمايشي كه نقاط شروع و پايان آن بر هم منطبق نبوده و يا به نقاط مختصات دار يك شبكه متكي نباشد را گويند . در اين نوع پيمايش براي بررسي دقت و خطاهاي صورت گرفته نمي توان كنترلي انجام داد اما با به كار بردن وسايل اندازه گيري دقيق و هم چنين تكرار اندازه گيري ها مي توان دقت عمليات را افزايش بدهيم .
اين نوع پيمايش عموما در كارهاي حفر تونل كه شرايط فيزيكي تونل مانع بستن پيمايش مي شود مورد استفاده قرار مي گيرد و يا مواقعي كه طول منطقه مورد نظر نسبت به عرض آن بزرگتر باشد .
امروزه از وسيله اي بنام ژيرسكوپ كه توانايي تعيين دقيق ژيزمان امتداد ها را دارد استفاده كرده و در شرايطي كه نسبت طول به عرض پروژه زياد باشد استفاده از جي پي اس دو فركانس توصيه مي شود چون در هر صورت اين روش جهت عمليات نقشه برداري قابل اعتماد نبوده و امكان خسارات جبران ناپذير وجود دارد .
2-پيمايش بسته : پيمايشي كه از يك نقطه شروع و به همان نقطه منتهي مي شود را گويند و دراين نوع پيمايش تمامي محاسبات قابل كنترل بوده و در آن مي توان دقت عمليات را بدست آورد . كاربرد اين نوع پيمايش در مناطقي است كه طول و عرض منطقه به هم نزديك باشد .
3- پيمايش اتصالي : پيمايشي كه مختصات نقاط ابتدا و انتها و ژيزمان ضلع اول معلوم باشد و يا دو نقطه ابتدا و انتهاي پيمايش داراي مختصات باشند .
اصول كلي عمليات تهيه نقشه
براي تهيه نمودن نقشه يك منطقه ابتدا مي بايست يك سري نقاط دنبال هم در آن منطقه مشخص كرده سپس موقعيت آنها را تعيين نماييم اين نقاط اسكلت نقشه را تشكيل خواهند داد . براي مشخص نمودن موقعيت مسطحاتي نقاط ذكر شده نياز به يك سري عمليات مي باشد كه به آن پيمايش گويند و به عبارت ديگر به عمليات اندازه گيري طول و زاويه هاي چند نقطه متوالي كه تشكيل خطول به هم پيوسته را مي دهند پيمايش گويند .
1- شناسايي منطقه و تهيه كروكي
گروه شناسايي قبل از اعزام به منطقه نقشه ها و عكسهاي موجود را بررسي كرده و اطلاعات مقدماتي از موقعيت جغرافيايي منطقه و عوارض موجود و راههاي دسترسي و غيره را كسب مب نمايند. پس از شناسايي مي بايست يك سري نقاط را به عنوان رئوس برداشت و يا بنچ مارك در محل مشخص نمايند و آنها را براي استفاده هاي آينده در كروكي مشخص نمايند تا به راحتي بتوانند پس از بازگشت مجدد آنها را پيدا كنند .
- بايد در محلهاي مناسب كه داراي پايداري و ديد مناسب باشند قرار گيرند .
- تا جايي كه امكان داشته باشد طول هاي رئوس پيمايش به هم نزديك باشند .
- نشانه گذاري آنها به شكلي باشد كه از دور دستها قابل مشاهده باشند .
- كل ايستگاهها بايد قابليت پوشش صد درد صد منطقه را داشته باشند .
- هر نقطه حداقل به نقطه قبل و بعد از خودش ديد داشته باشد .
- براي هر بنچ مارك نامي انتخاب كرده .
2- علامت گذاري و ساختمان رئوس پيمايش (توسط بتن ريزي)
3-برداشت (قرائت طولها و زواياي رئوس پيمايش)
4-محاسبه و ترسيم (پس از محاسبات لازم اطلاعات حاصل از برداشت به نقشه تبديل مي شود)
5-معادلات شرط در پيمايش
6-شرط زاويه اي در پيمايش
تشریح پیمایش با یک مثال
در منطقه اي مطابق شكل اقدام به تعيين نقاط رئوس پيمايش نموده ايم و اطلاعات مسئله نيز قيد شده است مطلوب است محاسبه پيمايش انجام شده و مختصات دار كرده ساير نقاط.

گام اول : شرط زاويه اي پيمايش بسته

گام دوم: محاسبه ژيزمان تمامي امتدادها
ژيزمان امتداد AB معلوم است يعني زاويه اي كه امتداد AB با امتداد شمال در جهت راست گرد ايجاد كرده است برابر 70.3662 درجه است جهت محاسبه ژيزمان ساير امتداد ها از قوانين زير استفاده مي نماييم .
1- ژيزمان معكوس AB را محاسبه كرده ( اگر ژيزمان AB بزرگتر از 180 درجه بود GBA= GAB-180 و اگر ژيزمان AB كمتر از 180 درجه بود GBA=GAB+180) كه در اين مثال چون ژيزمان AB =70.3662 است و كمتر از 180 درجه مي باشد لذا GBA=70.3662+180=250.3662
2-چون در جهت ساعت گرد در حال محاسبه عمليات پيمايش هستيم جهت محاسبه ژيزمان امتداد BC مي بايست ژيزمان معكوس امتداد AB كه همان GBA=250.3662 است را مطابق GBC=GBA-زاويه a2 , و درنهايت مطابق محاسبات زير عمل مي نماييم .
3- اگر در طول محاسبات ژيزمان امتدادي منفي شد آنرا با 360 درجه جمع مي نماييم چون ژيزمان منفي فاقد معني مي باشد .

گام سوم: محاسبه DX , DY تمامي امتدادها

گام چهارم : تصحيح خطاي موجود در جهت x , y
در اين مرحله مقدار خطاي موجود در راستاي x , y را مطابق فرمول زير بين تمامي امتدادها تقسيم مي نماييم .

گام پنجم: محاسبه X , Y تمامي نقاط رئوس پيمايش

ترفيع یا فری استیشن
فرض مي كنيم از نقطه A به سه نقطه B,C,D ديد داشته باشيم با استقرار دوربين در نقطه A زواياي a , b را قرائت مي نماييم . در ابتدا يك دايره فرضي بين سه نقطه A,B,C ترسيم نموده و يك خط از A به C وصل كرده و محل تقاطع آن را با دايره فرضي E مي ناميم و مراحل زير را انجام مي دهيم.

از طريق تقاطع مختصات نقطه E را محاسبه مي نماييم.

حال ژيزمان امتداد CE را محاسبه مي نماييم كه طبق محاسبات GCE= 188.4890 مي شود .

حال با داشتن زاويه B در مثلث ABE از رابطه سينوسها محاسبه طول AE امكان پذير خواهد بود .

در اين مرحله با توجه به روابط ذيل محاسبه مختصات نقطه A امكان پذير خواهد بود.

تقاطع در نقشه برداری
گاهي اوقات يك نقطه خارج از دسترس بهترين مكان جهت نشانه روي در نقشه برداري مي باشد مثلا زماني كه يك دكل مخابراتي از جهات مختلف قابل رويت باشد بهترين حالت را جهت نشانه روي دارد در اينجا نحوه مختصات دار كردن يك نقطه فاقد مختصات را از طريق دو ايستگاه داراي مختصات توضيح خواهيم داد .
1- نقطه محل استقرا دوربين به نام S1
2-نقطه رفرنس كه كمك نقشه برداري قرار دارد S2
3-نقطه مجهول ( ممكن است بالاي دكل مخابراتي باشد ) S3
نكته : در هر دو نقطه S1 و S2 مي بايست به نقطه اي كه قصد داريم آن را مختصات دار نماييم ديد داشته باشيم .
گام اول :دوربين را در ايستگاه S1 مستقر كرده و به نقطه S2 صفر صفر مي نماييم و دوربين را به نقطه S3 سوق داده سپس زاويه (S2 S1 S3) را ياد داشت مي نماييم .
گام دوم : محل استقرار دوربين را در ايستگاه S2 قرار داده و به نقطه S1 صفر صفر كرده و دوربين را به نقطه S3 سوق داده سپس زاويه (S1 S2 S3) را ياد داشت مي نماييم .
گام سوم : زاويه S3 از مجموع سه زاويه مساوي 180 قابل محاسبه است .
(S3=180-(S1+S2
گام چهارم : با توجه به اينكه نقاط S1 و S2 داراي مختصات هستند طول بين آنها را محاسبه مي نماييم .
گام پنجم : از رابطه سينوسها طول S1 به S3 قابل محاسبه است .
(SIN S3 / LS1S2) = (SIN S2 / LS1S3)
گام ششم : ژيزمان S1 به S3 را محاسبه مي نماييم .
گام هفتم :
LS1S3*SIN G S1S3)=DX S1S3 )
LS1S3*SIN G S1S3)=DY S1S3 )
گام هشتم :
X1+DX S1S3)=X3 )
Y1+DY S1S3)=Y3 )

تعريف خطا در عملیات نقشه برداری
اختلاف بين كميت اندازه گيري شده با مقدار واقعي آن كميت را خطا گويند . معمولا مقدار خطا كوچك است . چنانچه مقدار خطا از حد معيني ( خطاي ماكزيمم ) بيشتر شود آن را اشتياه گويند.
خطاي واقعي و خطاي ظاهري:
هرگاه مشاهده اي را با مقدار واقعي بسنجيم به آن خطاي واقعي و هرگاه مشاهده اي را با مقدار متوسط بسنجيم به آن خطاي ظاهري ميگويند,يعني اختلاف هر مشاهده از مقدار واقعي را خطاي واقعي و اختلاف هر مشاهده از مقدار ميانگين را خطاي ظاهري گويند.
تعريف اشتباه در عملیات نقشه برداری
اشتباه از فراموشي يا عدم مهارت نقشه برداري ناشي مي شود به عنوان مثال در موقع اندازه گيري طولي در قرائت دوربين اشتباه شود . به علت اينكه مقدار اشتباه بزرگ است مي توان با كنترب مشاهدات به آساني اشتباه را تشخيص داده و حذف نمود . اين ايراد عموما در اثر اشتباه اپراتور يا خراب بودن دستگاه بوجود مي آيد و معمولا غير قابل صرف نظر كردن است. عملیات جلوگیری از اشتباه:
– تكرار اندازه گيري
– كنترل با يك مدل رياضي
خطاي سيستماتيك يا تدريجي
به خطاهايي كه داراي مقدار معين و مشخص بوده در يك جهت و با هم جمع شوند ( خطرناكترين خطا در نقشه برداري ) خطاي سيستماتيك گويند . اين خطا ها معمولا از يك قانون فيزيكي يا رياضي پيروي مي كنند در نتيجه مي توان اين خطا را محاسبه و حذف نمود . اكثر اين خطا ها ناشي از نقص وسايل اندازه گيري مي باشند . مثلا زماني كه تنظيمات دوربين ايراد داشته باشد و يا يك متر كمتر از مقدار واقعي باشد.
خطاي اتفاقي يا تصادفي
اين نوع خطا ناشي از عدم تمركز نقشه بردار مي باشد و گاهي كم شونده و گاهي كم شونده هستند . اين خطا ها داراي جهت و اندازه نمي باشند و مقدار آنها ممكن است كوچك يا بزرگ باشند . عواملي شامل ايرادات دستگاهي و يا عوامل آب و هوايي سبب پيدايش اين خطا ها مي شود . بخاطر ماهيت اتفاقي بودن اين خطاها از قواعد آمار و احتمالات استفاده مي شود زيرا قابل بيان با يك رابطه رياضي يا فيزيكي نمي باشند و تحت شرايط يكسان اندازه گيري ممكن است يكسان نباشند .
منابع خطاها :
– خطاهاي انساني : معمولا در اثر بي توجهي به اصول نقشه برداري به وجود مي آيند كه مستقيما به ضعيف بودن نقشه بردار و عدم تسلط وي بر امور مربوطه مي باشد .
– خطاهاي طبيعي : خطاهاي ناشي ازعوامل طبيعي شامل ( وزش باد – كرويت زمين – رطوبت – فشار – انكسار – درجه حرارت و . . . )
خطاهاي دستگاهي : هر دستگاه نقشه برداري دقت محدودي داشته و همچنين به علت كاركرد دقت آن نيز كمتر مي شود و در نتيجه باعث بروز خطا مي شود . مثالهايي در اين رابطه شامل :
– تراز نبودن دوربين نقشه برداري
– خطاي پارالاكس دوربين
– انحنا پيدا نمودن شاخص
– خطاي كليماسيون
لازم به ذكر است قبل از استفاده از دوربين نقشه برداري بايد از كاليبره بودن آن اطمينان حاصل نماييم.




2 دیدگاه. ارسال دیدگاه جدید
بسیار عالی و کاربردی بود. دستمریزاد میگم. سپاسگزاریم.
درود بر شما، امید است مورد استفاده مهندسین نقشه برداری قرار بگیرد این مقاله